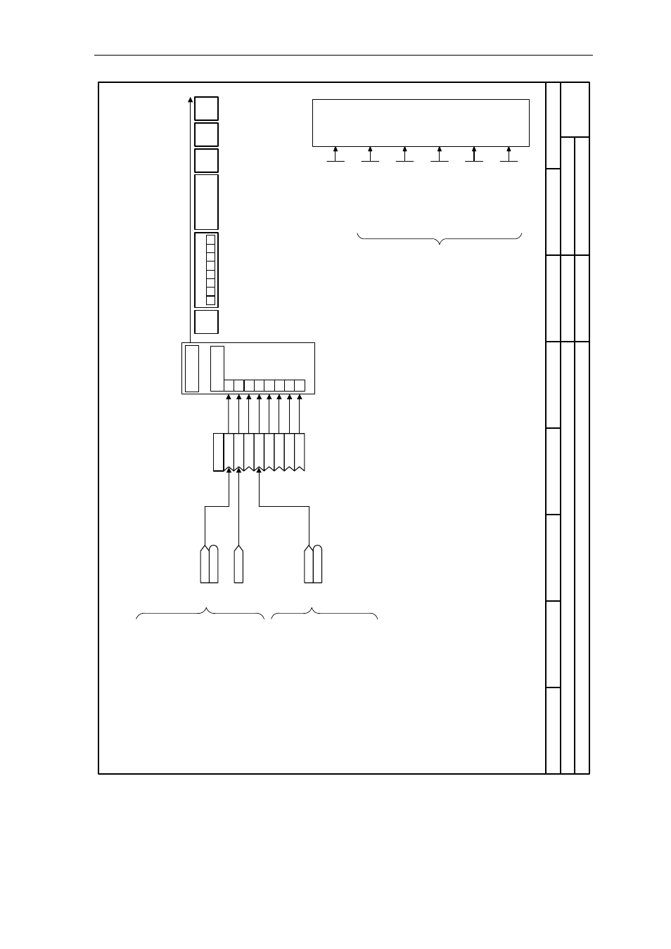
Function diagrams issue 01/06, Ex ter nal interfaces mi crom as te r 4 40, Uss on co m l ink , t rans mitti ng – Siemens 440 User Manual
Page 270

Function Diagrams
Issue 01/06
MICROMASTER 440 Parameter List
270
6SE6400-5BB00-0BP0
- 2610
-
F
unc
tion diagram
8
7
6
5
4
3
2
1
2610
_USSonC
OM.
vs
d
Ex
ter
nal
Interfaces
MI
CROM
AS
TE
R 4
40
16
.0
1.
2006
V2.
1
USS
on CO
M l
ink
, T
rans
mitti
ng
PKW
PZ
D
1
2
3
4
5
6
7
0
ADR
BCC
PZD
PKW
7
6
5
4
3
2
1
Tr
ansmit
tele
gram
[0]
P2019
[2]
[3]
[4]
[1]
[5]
[6]
[7]
CO/BO: Ac
t
S
tatWd1
r00
52
r00
52
r00
21
C
O
: f_act fi
lt 1 [
H
z]
CO/BO: Ac
t
S
tatWd2
r00
53
r00
53
LG
E
STX
Tx
D
Bit00
Dri
ve re
ady
Bit01
Dri
ve re
ady to run
Bit02
Dri
ve ru
nnin
g
Bit03
Dri
ve faul
t acti
ve
Bit04
O
F
F2
ac
tive
Bit05
O
F
F3
ac
tive
Bit06
O
N
in
hibi
t acti
ve
Bit07
Dri
ve war
ni
ng acti
ve
Bit08
Devia
tion
s
etp
oint
/ act. v
a
lue
Bit09
PZD
cont
rol
Bit10
Maximu
m freq
uency
r
eached
Bit11
Warni
ng: M
otor cur
rent
Bit12
Motor
hol
ding
brake acti
ve
Bit13
Motor
ov
e
rload
Bit14
Motor
runs r
ight
Bit15
Inverter
overl
oad
Bit00
DC b
rake acti
ve
Bit01
Ac
t. f
req. r
0021 >
P21
67 (f_o
ff)
Bit02
Ac
t. f
req. r
0021 >
P10
80 (f_m
in)
Bit03
Ac
t. cur
rent
r0027
>=
P2170
Bit04
Ac
t. f
req. r
0021 >
=
P2155 (
f_1)
Bit05
Ac
t. f
req. r
0021 <
P21
55 (f_1
)
Bit06
Ac
t. f
req. r
0021 >
=
setpoi
nt
Bit07
Ac
t. Vd
c r
0026 <
P2172
Bit08
Ac
t. Vd
c r
0026 >
P2172
T
ransmi
t
Bit09
Rampi
ng fi
ni
shed
Bit10
PID outpu
t r229
4 =
=
P22
92 (PID
_mi
n)
Bit11
PID outpu
t r229
4 =
=
P22
91 (PID
_max)
Bit14
Down
load
data set 0 fr
om AOP
Bit15
Down
load
data set 1 fr
om AOP
Al
l param
eters:
In
dex
=
0
=> C
O
M
li
nk
USS baudr
ate
4 ... 12
P2010
[2] (6
)
USS
confi
gur
ati
on
Chan
ge par
. v
ia
0 ... 15
P0927 (
15)
USS addr
ess
0 ... 31
P2011
[2] (0
)
U
SS PKW l
en
gth
0 ... 1
27
P2
013 [2] (
127)
USS PZ
D l
ength
0 ...
8
P2012 [2]
(2)
USS tel
egram
T_of
f
0 ... 65
535 [ms]
P2014 [2] (
0)
Bi
t3 =
1
0
No
te
:
P201
9[0] =
52
P201
9[1] =
21
P201
9[3] =
53
ar
e defau
lt setti
ngs