Chapter 1. setting up – IAI America S-SEL-E User Manual
Page 67

Page 62
Chapter 1.
Setting Up
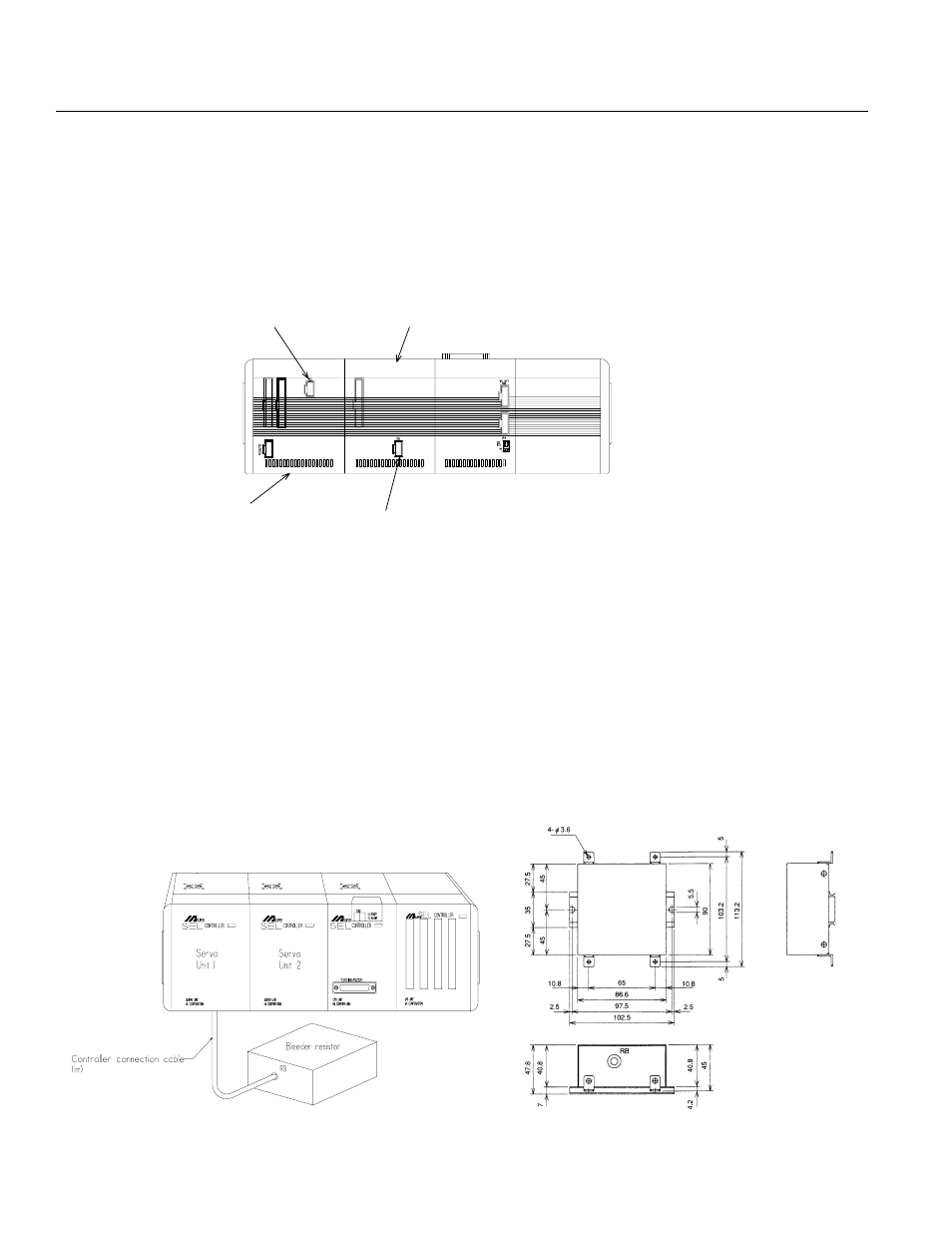
10. Bleeder Resistor
If the selected module uses a large amount of voltage, there will also be a large amount of regenerative voltage which in
some cases may require you to attach a bleeder resistor. The determination of whether to attach a bleeder resistor is made
for each servo unit separately and is dependent on the total wattage of all motors for that unit. However, if the servo unit
has a brake specification, there is a brake box (option) with a built-in discharge circuit.
Below, we illustrate the connection of a bleeder resistor to the controller using an M-SEL-G-3-AC-200-200-100 module as
an example.
Bleeder resistor connector (RB)
Servo unit 1
(200W 2 axis)
For 2 axes
In the above module, servo unit 1 has a large combined motor capacity, which may require a discharge circuit so a bleeder
resistor is attached. In this case, the cable for connecting the resistor to the controller is plugged into the resistor connector
RB. Servo unit 2 does not require a resistor since the motor capacity is small. The resistor connector (RB) becomes a
reserve connector.
* At present, the general rule is that a bleeder resistor is attached for each servo unit in which the total motor capacity of
all the axes is 200W or greater for an AC motor and 300W or greater for a DC motor. Also, if you are using the actuator
as a vertical axis, the optional bleeder resistor is necessary even if you are not using a brake (box).
Note: If you forget to attach a bleeder resistor when the actuator is carrying a vertical load, excessive regenerative voltage
will cause an "A1" driver alarm. If this happens, turn the power OFF, then turn the power back ON to home the actuator.
M-SEL-G-3-AC-200·200·100
Bleeder resistor
connector (RB)
Dimensions
Servo unit 2 (100W 4-axis)
For 1 axis
