Electrical system – SkyTrak 3606 Service Manual User Manual
Page 353

Electrical System
10-35
Model 3606 • Origin 10/99
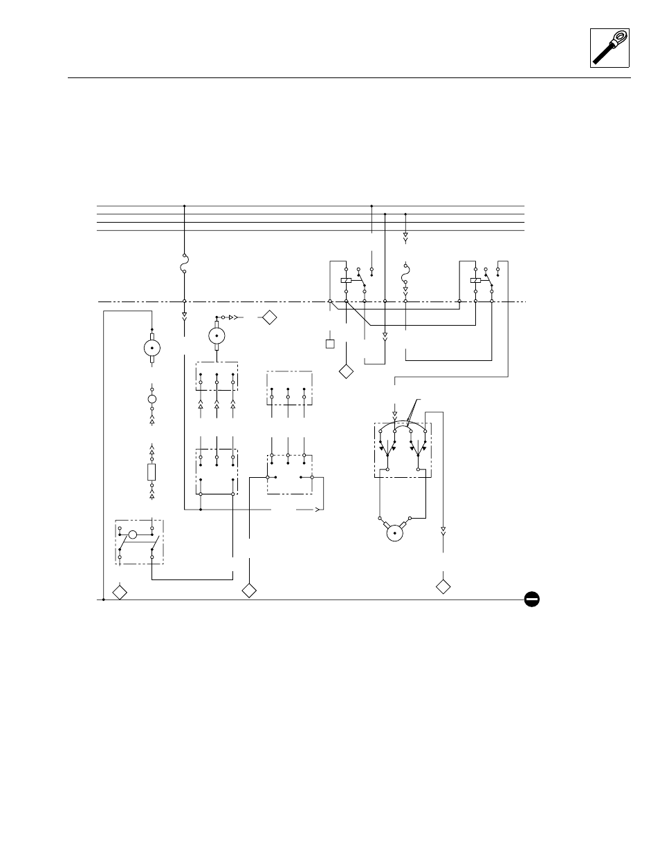
Figure 10– 20. Enclosed cab option electrical schematic, right side.
#124
DK BLU/GRY
10
#2AB
BLK
16
6
4
3
JUMPER
WIRES
87
30
85
86
87A
25 A
FUSE
149
1
C
B
M
H
M
5/C
L
A
G55
5
M
#2
272
273
271
G54
270
269
268
#1
POS.
264
262
261
260
263
AIR
CONDITIONING
SWITCH
2
G53
257
258
256
1
255
254
253
GRD.
259
2
DOOR WINDOW
SWITCH
4
1
G52
3
251
250
249
252
#159
WHT/BLU
16
2/B
COMPRESSOR
CLUTCH
M
BLOWER
MOTOR
#2AC
BLK
12
P
#165
LT GRN/ORN
16
PRESSURE
SWITCH
THERMOSTAT
#160
BLU/RED
16
7/F
T
B1
7/G
B
C
L
M H
BLOWER
SWITCH
SPLICE 75
VALVE DRIVE
MODULE
#142A
RED/YEL
16
C4
GRY
16
#2CC
BLK
16
BLOWER
MOTOR
DRIVE
#142
YEL/GRN
10
7/A
7/B
7/C
#156
YEL
14
#157
RED
14
#158
ORN
14
VALVE
POTENTIOMETER
FROM
SPLICE
65
G34
#2XX
BLK
16
#27A
BRN/WHT
16
1/A
#136
LT GRN/RED
10
#182
ORN
10
C
B
A
#161
BLU
16
#162
WHT
16
#163
BRN
16
5/D
5/E
30 A
DOOR POWER
RELAY
ACCESSORY
RELAY
#141
RED/BLU
10
87
30
85
86
87A
267
265
266
#164
LT GRN/PUR
10
2/A
DOOR
WINDOW
MOTOR
2/B
#2AD
BLK
10
ACCESSORY POWER (2)
SWITCHED POWER
ACCESSORY POWER
BATTERY (+) POWER
BUSS BARS
CAB STRUCTURE
MS2580
