Installing more than one unit in a cabinet – Toshiba VF-FS1 User Manual
Page 35

E6581381
A-23
1
• Install surge suppressor on any magnetic contactor and relay coils used around the inverter.
• Install noise filters if necessary.
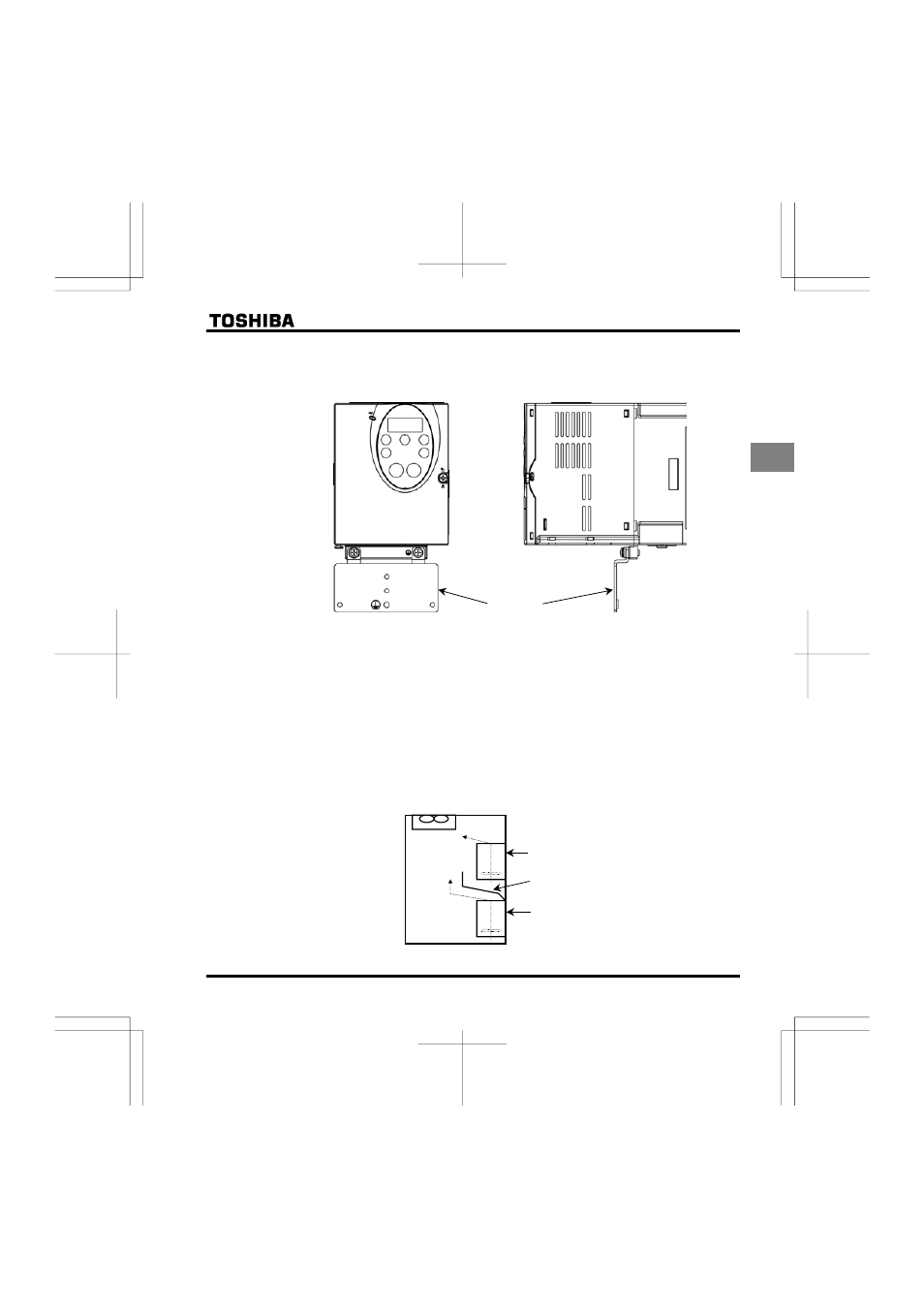
• Install EMC plate and use shielded wires.
EMC plate
■
Installing more than one unit in a cabinet
If you are installing two or more inverters in one cabinet, pay attention to the following.
• Inverters may be installed side by side with each other with no space left between them.
• When installing inverters side by side, detach the caution label on the top surface of each inverter and
use them where the ambient temperature will not rise above 40°C.
When using inverters where the ambient temperature will rise above 40°C, leave a space of 5 cm or
more between them and remove the caution label from the top of each inverter, and operate each
inverter at a current lower than the rated one.
• Ensure a space of at least 20 centimeters on the top and bottom of the inverters.
• Install an air deflecting plate so that the heat rising up from the inverter on the bottom does not affect the
inverter on the top.
Ventilation fan
Inverter
Air deflecting plate
Inverter
