ADS Environmental Services ADS TRITON+ QR 775027 A3 User Manual
Page 140

Communication
4-9
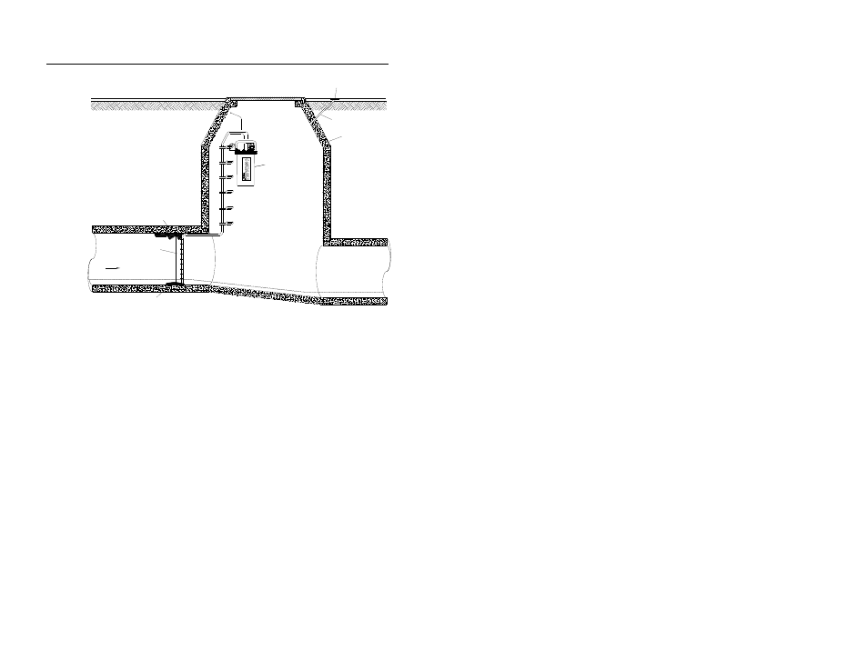
INSTALLATION RING
ULTRASONIC DEPTH SENSOR
PEAK COMBO SENSOR
FLOW
SURFACE COMBO SENSOR
OR
ANTENNA HOLE
CABLE CHANNEL
CORBEL
TRITON+ MONITOR
TM
Hole running from antenna installation location to manhole
5. Level the bottom of the hole using the demolition hammer with
the chisel and a bushing tool.
6. Thoroughly clean out the hole for the antenna of all debris
using a shop vacuum with a brush.
7. If the protective cap is not present on the connector at the end
of the antenna cable, clean the connector and tape it up with
rubber stretch tape for protection against damage and debris
while it is being fed through the channel.
8. Feed the antenna cable into the hole, through the channel, and
into the manhole. Smooth any rough edges where the cable
enters the corbel hole with the chisel or rubber stretch tape. In
addition, pack rubber stretch tape into the cable hole to prevent
asphalt or sealer from entering the cable hole.
9. Remove the white release tape from the antenna element. Be
careful to avoid contacting the black rubber mastic material
with anything until the antenna is ready to be seated.
