Directory
Brands
ADS Environmental Services manuals
Water equipment
ADS TRITON+ QR 775027 A3
Manual

ADS Environmental Services ADS TRITON+ QR 775027 A3 User Manual

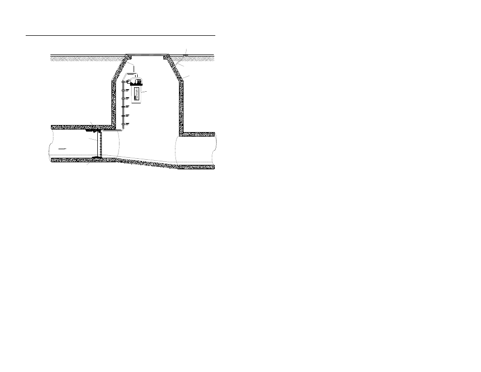
Page 140

  • Text mode
  • Original mode
ADS Environmental Services ADS TRITON+ QR 775027 A3 User Manual | Page 140 / 424 ADS Environmental Services ADS TRITON+ QR 775027 A3 User Manual | Page 140 / 424
Pages: 1 … 138 139 140 141 142 … 424
  • wrong Brand
  • wrong Model
  • non readable
See also other documents in the category ADS Environmental Services Water equipment:
  • IETG FlowHawk QR 775012 A4 (399 pages)
  • FlowShark QR 775002 A4 (266 pages)
  • FlowShark QR 775003 A2 (236 pages)
  • FlowShark Pulse QR 775004 A1 (186 pages)
  • Portable FlowShark Pulse QR 775006 A2 (209 pages)
  • FlowShark HV QR 775005 A2 (26 pages)
  • Model 4000 530017 A0 (125 pages)
  • Model 3600 530002 A2 (133 pages)
  • FlowAlert QR 775011 A2 (203 pages)
  • RainAlert II QR 775008 A2 (138 pages)
  • Spider QR 775010 A0 (116 pages)
  • IntelliServe 2.8.1 950026A7 (290 pages)
  • Profile Software 950015B6 (641 pages)
  • Enigma QR 775017 A2 (96 pages)
  • Enigma (2 pages)
  • Eureka Digital QR 775020 A0 (65 pages)
  • Eureka2R QR 775019 A1 (44 pages)
  • Mikron QR 775014 A0 (22 pages)
  • Mikron (2 pages)
  • PrimeLog QR 775015 A0 (32 pages)
  • PrimeProbe2 QR 775016 A0 (49 pages)
  • PrimeProbe2 (1 page)
  • PrimeProbe2 (2 pages)
  • PrimeWorks QR 775018 A0 (86 pages)
  • XiLog+ QR 775026 A0 (76 pages)
  • Hykron (Operation) (1 page)
Home Brands Popular manuals Recently added
Manuals Directory

© 2012–2025, azmanual.top
All rights reserved.