Comtech EF Data HPCST-5000 User Manual
Page 90

Redundant System Installation
High-Power TWTA Satellite Terminals
3–6
Rev 1
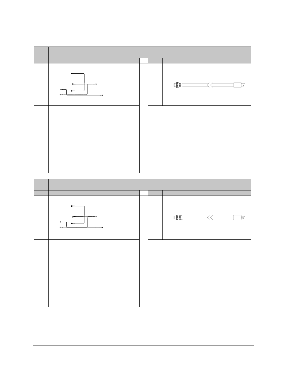
1
Cable kit (EFData Part # KT/5249-2), which includes:
Qty.
Description
Qty.
Description
1
Cable assembly.
EFData Part # PL/5122.
1
Cable assembly.
EFData Part # PL/5240.
1
Cable hardware kit.
This kit contains the following connectors:
CN/DSB09FSPT01
CN/DSB09H01
CN/DSB09MSPT01
CN/DSB15F01
CN/DSB15H01
CN/DSB15MSPT01
CN/DSB37H01
CN/DSB37M01
CN/MS-STPG41M01
EFData Part # KT/5249.
1
Cable kit (EFData Part # KT/5249-3), which includes:
Qty.
Description
Qty.
Description
1
Cable assembly.
EFData Part # PL/5122-1.
2
Cable assembly.
EFData Part # PL/5240.
1
Cable hardware kit.
This kit contains the following connectors:
CN/DSB09FSPT01
CN/DSB09H01
CN/DSB09MSPT01
CN/DSB15F01
CN/DSB15H01
CN/DSB15MSPT01
CN/DSB37H01
CN/DSB37M01
CN/MS-STPG41M01
EFData Part # KT/5249.
