Positionneur 1067, Annexes – Burkert Type 1067 User Manual
Page 148

F-46-
POSITIONNEUR 1067
A3 : CARTE OPTIONNELLE "INDICATEUR DE POSITION ANALOGIQUE
4-20 mA" (IDENT. 427193G) : MONTAGE ET RACCORDEMENT
Le positionneur doit être équipé de la version logicielle F, ou supérieure ; vérifiez-la dans le
menu principal, option "END" : elle est affichée à droite de l'écran.
Caractéristiques techniques de la sortie Option du positionneur
- Signal pour la position réelle : 4-20 mA
- Résistance ohmique externe / Résistance d'entrée de l'appareil à raccorder : 0-560 Ohms
- Taux d'erreur en sortie : < 0,05 %
- Sortie libre de potentiel ; séparée électriquement de l'électronique de position.
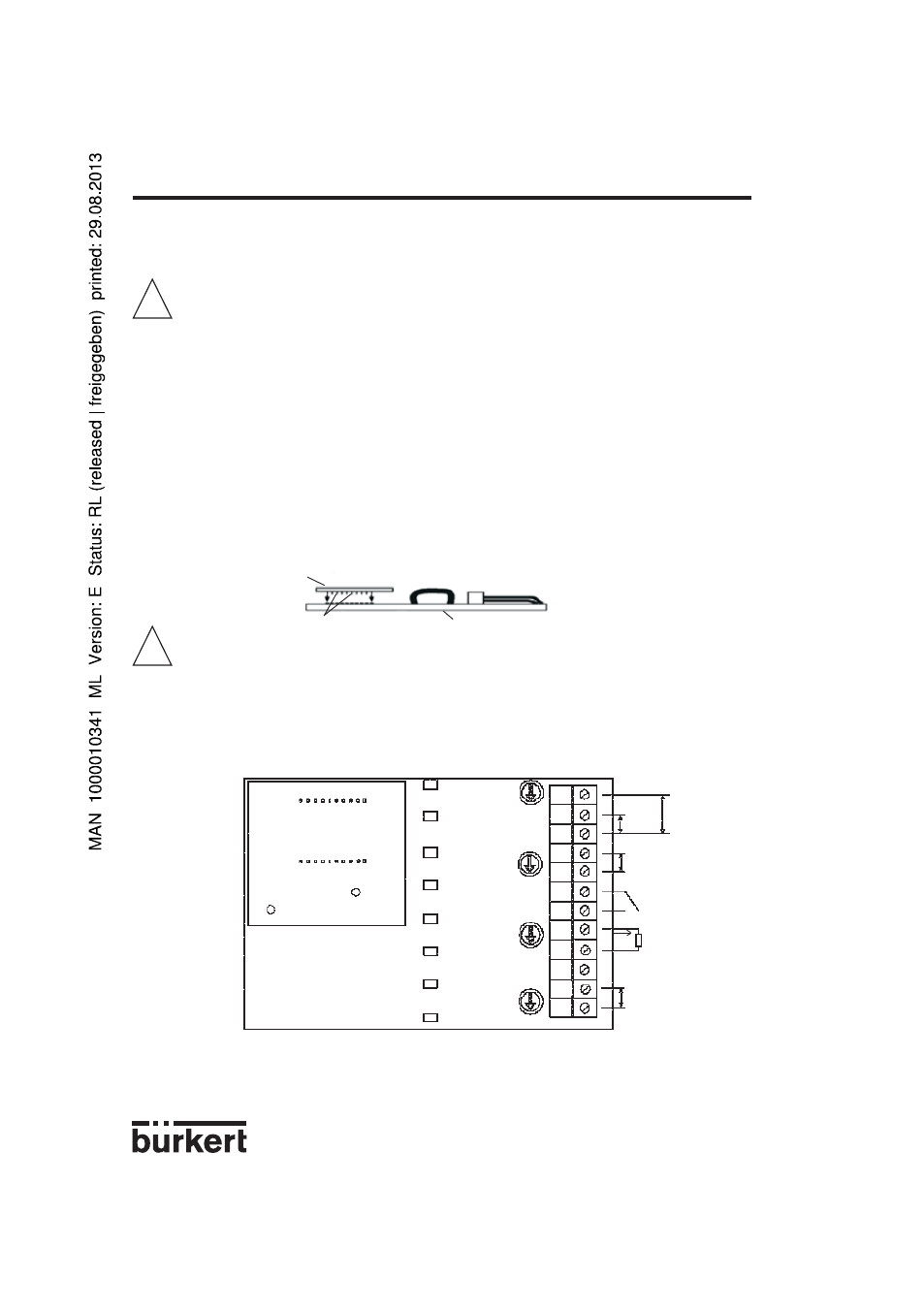
Montage
- Débrancher le positionneur de la source de tension
- Desserrer les 4 vis du couvercle du positionneur et ouvrir le couvercle
- retirer les 2 cavaliers rouges de la carte mère
- Insérer la carte optionnelle sur la carte mère comme l'indique la figure ci-dessous
Veiller à ce que les broches s'insèrent correctement sur la carte mère.
- Faire passer les câbles par l'un des deux presse-étoupes PG9, les dénuder sur 6 mm et les
raccorder à la barrette de raccordement selon le schéma de connexion (bornes I/O3 et I/04)
- refermer le couvercle et serrer les 4 vis en veillant à ne pas coincer les câbles ou les fils.
Schéma de connexion
Confi guration
- Pour configurer le positionneur, se référer au chapitre 4.5 de ce manuel.
- Pour activer l'indication de position analogique, choisir l'option ANALOG dans la fonction
OUTPUT du menu de configuration.
ANNEXES
Carte Option analogique
Carte mère
Broches
!
!
I1
U1
GND1
I2
GND2
I/O1
I/O2
I/O3
I/O4
PE
+24 V
-
0-10 V
0/4-20 mA
4-20 mA
I
L
= 4-20 mA
R
L
= 0-560 Ohm
24 V DC Tension
d'alimentation
Carte Option analogique
Carte mère
+
-