Tabla de puntos – SINGER 5430 User Manual
Page 32
Attention! The text in this document has been recognized automatically. To view the original document, you can use the "Original mode".

S I N G E R
Tabla de puntos
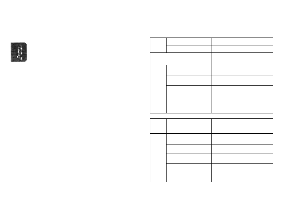
El selector de bordados permite escoger fácilmente el tipo de
bordado deseado.
Siempre que lo desee, utilice esta tabla para una orientación
mejoren laaplícación de los bordados.
Nota: Antes de mover el selector de bordados, regule
el selector del ancho de la puntada en la
posición de costura recta.
8
5
5 4 I 7 C
X
5430
C
X
líInMllnn
A
▲
finnoílíllj
A
1
1
§
i
Punto
---:--------
/ww\
Nombre / disco
Punto Recto
Puntada Zigzag
Pie prensateias
Uso General
Uso General
Apiicación
Costura en
generai
Costura
elástica
â
5 4 I 7 C
8
5430 C
X
X
Punto
Nombre/disco
Punto
Recto Bástico
Ric-Rac
ce
§
C!
Pie prensateias
Uso Especial
Uso Especial
£
Apiicación
Costuras Básticas
Confección
de suéter y
trajes de baño
30