Adjustments and calibration, Maintenance – KMC Controls CTE–1108 User Manual
Page 2

KMC Controls
P.O. Box 497
19476 Industrial Drive
New Paris, IN 46553
U.S.A.
TEL: 574.831.5250
FAX: 574.831.5252
E-mail: [email protected]
818-019-01A
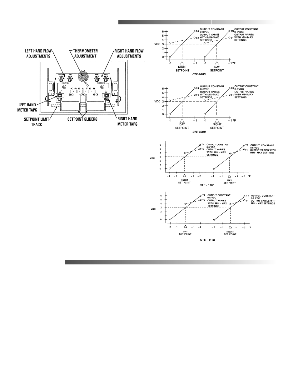
Adjustments and Calibration
Upon receipt, no thermal calibration should be
required.
Flow control points can be calibrated before or after
installation.
1. Verify 9.1 VDC between (+) and (-) terminals.
Refer to wiring diagram.
2. Measure T1 output voltage.
3. Refer to the graphs (right) to make adjustments.
4. Always adjust the minimum flow first.
a. DA Cooling; Set point > Room Temp.
b. RA Heating; Set point < Room Temp.
5. Always adjust maximum limits to a value higher
than the minimum limits. If in doubt, turn Max.
limit fully clockwise (increase) before
proceeding.
a. DA Cooling; Set point < Room Temp.
b. RA Heating; Set point > Room Temp.
Maintenance
No routine maintenance is required. Each
component is designed for dependable, long term
reliability and performance. Careful installation will
also ensure long term reliability and performance.