Vcc-x controller wiring, Economizer actuator wiring, Vcc-x controller technical guide – Orion System VCC-X Controller User Manual
Page 35: Economizer damper actuator

VCC-X Controller Technical Guide
VCC-X CONTROLLER WIRING
35
Economizer Actuator Wiring
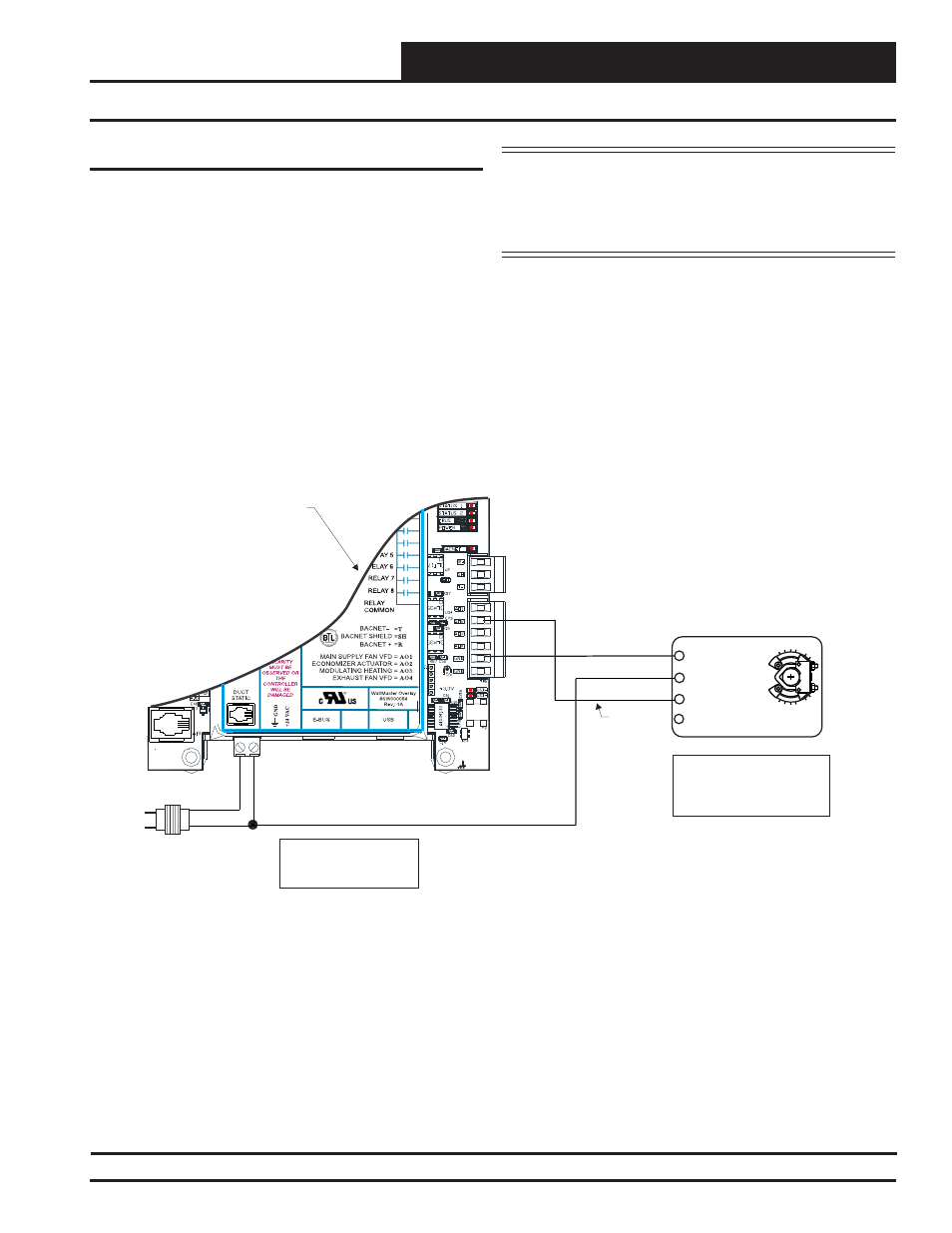
Figure 20: Economizer Damper Actuator Wiring
Typical
2-10 VDC
Output
Belimo Actuator Wiring
Shown. Consult Factory
For Other Manufacturer
24 VAC
Economizer Damper Actuator
(By Others - Belimo Actuator Shown)
3 Y1
2
1 - COM
+
GND
AOUT2
GND
24VAC
GND
Line
Voltage
Size Transformer For
Correct Total Load.
VCC-X Controller = 15 VA
VCC-X Controller
5 Economizer Feedback
NOTE: For Economizer
Actuator Feedback Signal,
See
Wiring For The
VCC-X EM1 Module.
T3
Economizer Damper Actuator
The Economizer Damper Actuator signal voltage output (using
AOUT2) is user-adjustable, but must be set to 2-10 VDC for this
application. This signal output is used by the VCC-X Controller
to modulate the Economizer Damper Actuator in order to control
the amount of Outdoor Air delivered to the HVAC unit for Free
Cooling and/or Indoor Air Quality requirements. See Figure 20 for
detailed wiring.
WARNING:
It is very important to be certain that all
wiring is correct as shown in the wiring
diagram below. Failure to observe the correct
polarity will result in damage to the actuator
or
VCC-X
Controller.
