B.3 removing front covers. frame sizes d and e – Watson-Marlow MM440 User Manual

Page 284

background image

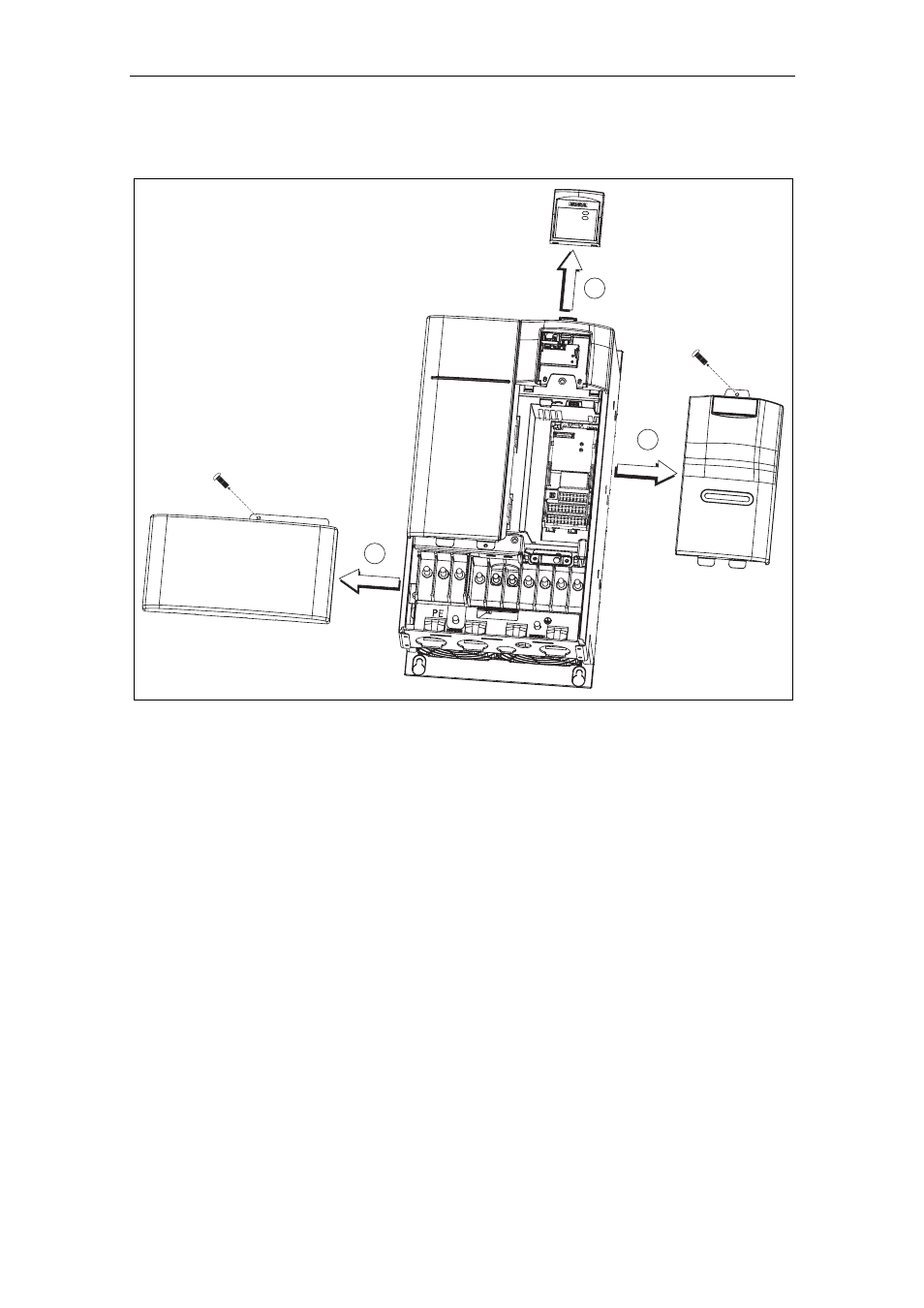
Removing Front Covers

Issue 10/06

MICROMASTER 440 Operating Instructions

284

6SE6400-5AW00-0BP0

B.3

Removing Front Covers. Frame Sizes D and E

!