2 mounting dimensions for nema frames – Rockwell Automation VSM500 Integrated Drive/Motor User Manual
Page 22

3-2
Installing and Operating the VSM500 Integrated Drive/Motor, Version 3.0
3.2
Mounting Dimensions for NEMA Frames
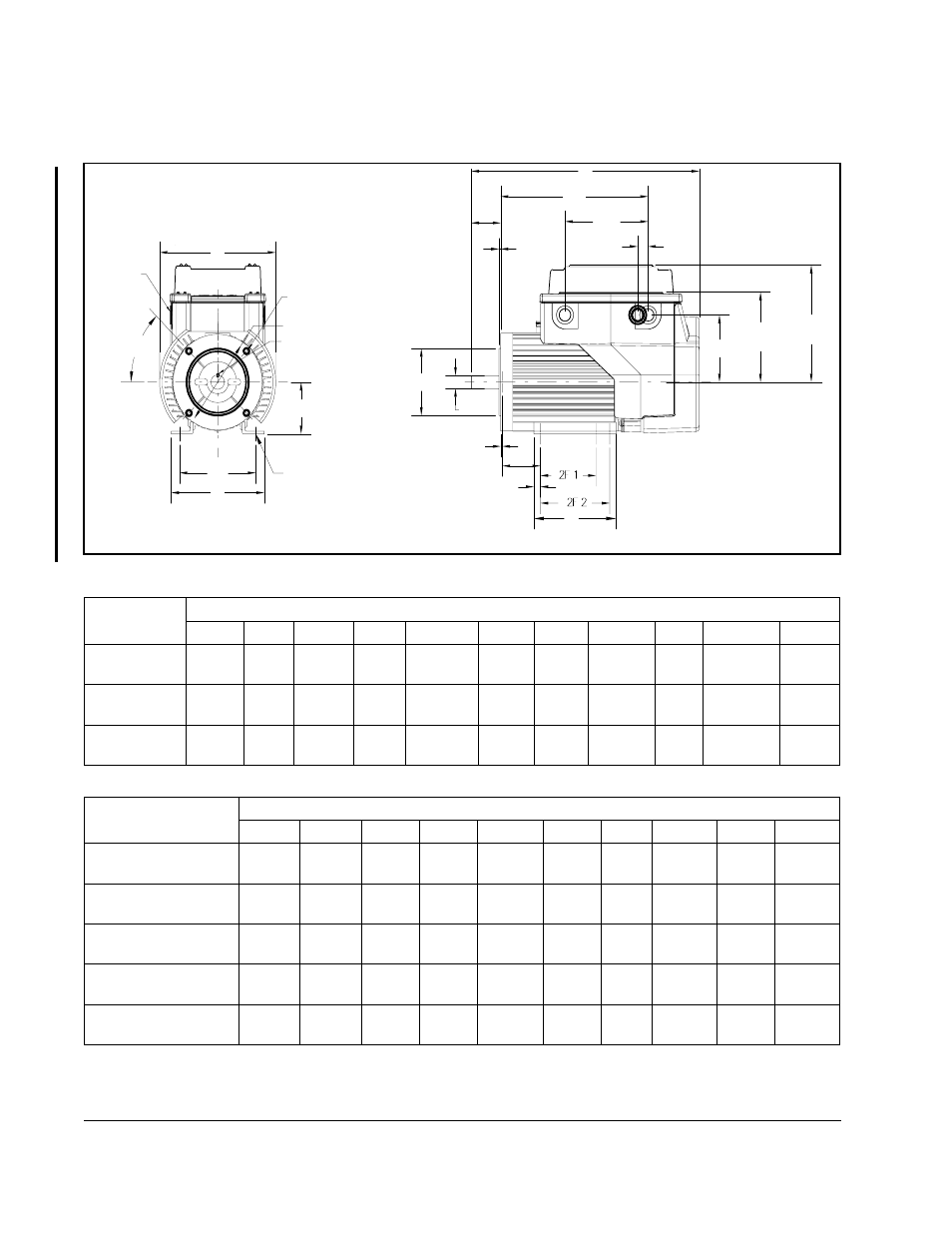
Figure 3.1 – NEMA Frame Mounting Dimensions
Dimensions in inches (mm)
Frame Size
A
2E
H
D
BF
AJ
AK
U
AH
S
ES
56C
6.71
(170)
5.50
(140)
0.34
(8.6)
3.50
(89)
3/8-16
5.88
(149)
4.50
(114)
0.625
(15.9)
2.06
(52)
.19 SQ
(4.8)
1.25
(32)
143TC
145TC
6.71
(170)
5.50
(140)
0.34
(8.6)
3.50
(89)
3/8-16
5.88
(149)
4.50
(114)
0.875
(22.3)
2.12
(54)
.19 SQ
(4.8)
1.25
(32)
182TC
184TC
8.50
(216)
7.50
(191)
0.34
(8.6)
4.50
(114)
1/2-13
7.25
(184)
8.50
(216)
1.125
(28.6)
2.62
(67)
.25 SQ
(6.4)
1.50
(38)
Dimensions in inches (mm)
Frame Size
BC
BB
BA
B
2F 1
2F 2
EV
C
P
BV
56C
-0.19
(-4.8)
0.12
(3.0)
2.75
(70)
6.50
(165)
3.00
(76)
5.00
(127)
0.47
(12)
15.90
(404)
8.38
(213)
10.14
(258)
143TC
0.12
(3.0)
0.12
(3.0)
2.75
(70)
6.50
(165)
4.00
(102)
5.00
(127)
0.47
(12)
16.46
(418)
8.38
(213)
10.14
(258)
145TC
0.12
(3.0)
0.12
(3.0)
2.75
(70)
6.50
(165)
4.00
(102)
5.00
(127)
0.47
(12)
15.96
(405)
8.38
(213)
10.64
(270)
182TC
0.12
(3.0)
0.25
(6.4)
3.50
(89)
6.50
(165)
4.50
(114)
5.50
(140)
0.50
(13)
18.75
(476)
8.80
(224)
12.39
(315)
184TC
0.12
(3.0)
0.25
(6.4)
3.50
(89)
6.50
(165)
4.50
(114)
5.50
(140)
0.50
(13)
19.75
(502)
8.80
(224)
13.39
(340)
45°
BF
B
C
BB
BV
6.00
D
AK
BA
EV
2E
A
H - Diameter Through
Face Runout & Eccentricity .004 Max. T.I.R.
Shaft Runout .002 Max. T.I.R.
4.50
S - Key Width/Height
3/4 Conduit
P
BC
AH
U
.75
**
* Denotes Control Wiring Ports
** Denotes Input Power Port Opposite Side
*
AJ
Both Sides
ES - Key Length
6.01
Short Cover
7.86
Std. Cover