5 mounting the applicator, Installation – Brady PAM 3000 User Manual
Page 20

20
Printer-Applicator-System PAM 3000
5 Mounting the Applicator
Installation
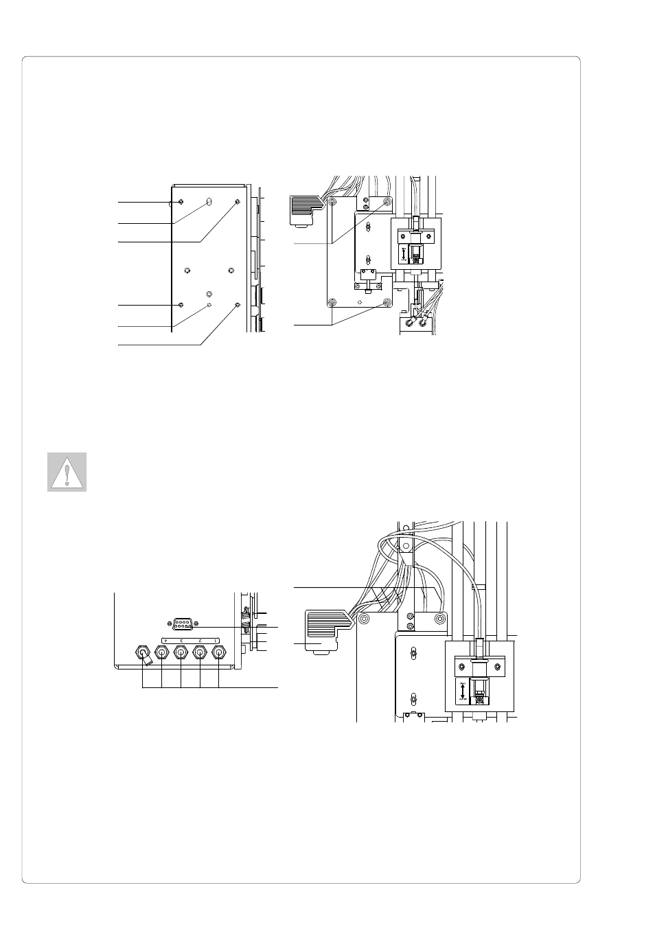
1. Put the applicator at the left side of the PAM 3000 printer using the four holes (1).
2. Fasten the applicator by screwing the four screws (4) including the washers.
CAUTION !
Make sure that the two bolts at the rear side of the applicator are inserted into the
long hole (2) and the guide hole (3) on the side of the printer.
Fig. 5a
Installing the applicator
1
2
1
1
3
1
4
4
3. Plug the connector of the applicator's electronic system (7) in the peripheral port (6) of the
PAM 3000 printer.
4. Push the compressed air tubes of the applicator (5) into the appropriate push-in-fittings (8)
on the top of the PAM 3000 printer. The appropriate tubes and fittings are marked by
figures.
Fig. 5b
Connecting the applicator
5
6
7
8
