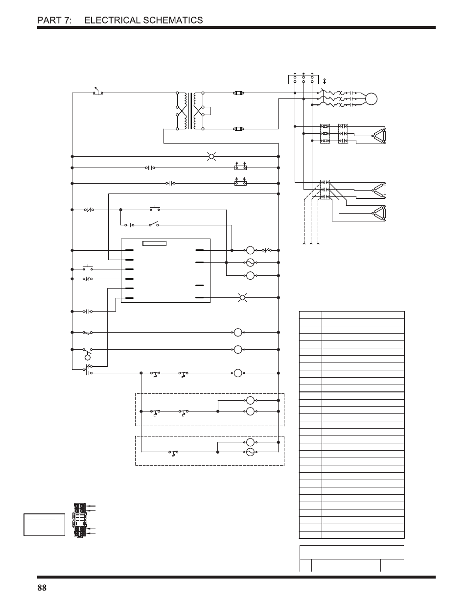
CHAMPION USN10 User Manual
Page 106

B
REV.
STEAM/ELECTRIC HEAT
USN-10 NAVY UNDER COUNTER DISHWASHER
701790
NO
NC
COIL
COMMON
RELAY
DOORS CLOSED
TANKS EMPTY
POWER OFF
DIAGRAM STATE
RWV
RINSE WATER VALVE
BOOSTER THERMOSTAT
WASH THERMOSTAT
WASH THERMOSTAT (STEAM)
BOOSTER THERMOSTAT (STEAM)
BSTR TEMP CHECK RELAY
TKR
TS4
CONTROL TRANSFORMER
TS2
TS3
TS1
T1
1MTR
WASH PUMP MOTOR
WASH HEATER CONTACTOR
BOOSTER HEATER CONTACTOR
POWER ON SWITCH
FUSE
GROUND
LOW WATER SHUT OFF FLOAT
POWER ON LIGHT
MANUAL WASH SWITCH
PUSHBUTTON START SWITCH
LT1
RINSE AID RELAY
PS
RAR
PB
MW
HC1
HC2
HWCO
GND
FU
WASH MOTOR OVERLOAD
DOOR SAFETY RELAY
LOW WATER SHUT OFF RELAY
WASH TANK HEATER
WASH MOTOR CONTACTOR
1HTR
1MOL
1M
1CR
2CR
2HTR
BOOSTER HEATER
MANUAL RINSE SWITCH
CYCLE LIGHT
MR
LT2
TS6
BOOSTER SAFETY THERMOSTAT
TS7
WASH HEAT SAFETY THERMOSTAT
DOOR SAFETY SWITCH
DSS
BV
BOOSTER STEAM VALVE
WV
WASH TANK STEAM VALVE
14
17
19
17
36
19
4
17
4
16
20
4
55
4
52
52
16
17
18
73
2
19
19
19
19
2
2
2
20
2
2
55
G
2
2
10
9
70
4
4
4
15
2
8
4
4
70
4
70
71
10
9
4
53
4
4
4
4
5
OFF ON
2
54
4
R
9
9
10
2
2
2
2
2
2
2
2
21
22
23
29
30
28
25
26
24
73
PLACE RED LEAD TO TERMINAL BEING TESTED
i.e. PLACE RED LEAD TO T8 TO TEST DOOR SW.
SET METER TO READ DC VOLTAGE
PLACE BLACK LEAD TO T2
MUST BE USED.
METER CAPABLE OF READING DC VOLTAGES
AN OPEN SWITCH WILL READ 4.7-5.3VDC
A CLOSED SWITCH WILL READ 0-1VDC
TO TEST INPUTS T7, T8, T9 AND T10 A
3.)
2.)
1.)
4.)
NEUTRAL
LAMP OUTPUT
NOT USED
RINSE OUTPUT
EXT. WASH
START SWITCH
FLOAT SWITCH
DOOR SWITCH
WASH OUTPUT
HOT T2
T1
T7
T8
T9
T10
T2
T6
T4
T5
31
33
32
TKR
HC2
TKR
HC1
2CR
1CR
1M
1MOL
1M
PUMP
WASH
OPTIONAL SECOND CONNECTION
TO CUSTOMER DISCONNECT
SWITCH. 20 FULL LOAD AMPS
AT 440V 60HZ 3 PHASE.
MINIMUM CIRCUIT CAPACITY
25A. FUSED OR BREAKER
FOR 25A MAX.
TO CUSTOMER DISCONNECT
SWITCH. 26 FULL LOAD AMPS
AT 440V 60HZ 3 PHASE.
MINIMUM CIRCUIT CAPACITY
30A. FUSED OR BREAKER
FOR 30A MAX.
TO CUSTOMER DISCONNECT
SWITCH. 6 FULL LOAD AMPS
AT 440V 60HZ 3 PHASE.
MINIMUM CIRCUIT CAPACITY
15A. FUSED OR BREAKER
FOR 15A MAX.
OPTIONAL 2 POINT CONNECTION
SINGLE POINT CONNECTION
AT BOOSTER HEATER CONTACTOR
440V 3KW
440V 18KW
BOOSTER HEAT
TANK HEAT
OPTION
ELECTRIC HEAT
OPTION
STEAM HEAT
TS6
TS4
TS2
2CR
HWCO
DSS
TKR
TS7
TS1
BV
LT2
WHITE
1CR
PB
2CR
1CR
MW
MR
RAR
PS
1M
X2
LT1
H4
110V
X1
H1
RAR
RWV
1MOL
RINSE AID
HC2
H2
DET. SIG.
FU
H3
440V
FU
HC1
FU
GND
9KW
3KW
9KW
LINE
L3
L2
L1
2L1 2L2
2L3
T1
FUSE
For Machines beginning
with S/N U10063397 and above.
For Machines beginning with S/N U10063397 and above.
