Directory
Brands
PRG manuals
Equipment
S400 User Manual 3.1
Manual

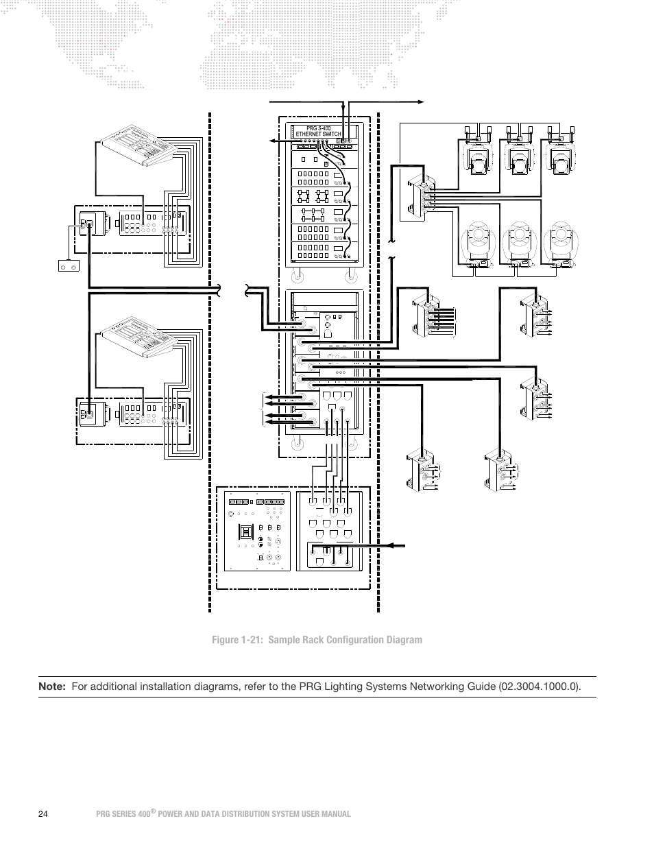
Power and data distribution system user manual, Foh position stage, Truss – PRG S400 User Manual 3.1 User Manual

Page 30

  • Text mode
  • Original mode
Power and data distribution system user manual, Foh position stage, Truss | PRG S400 User Manual 3.1 User Manual | Page 30 / 66 Power and data distribution system user manual, Foh position stage, Truss | PRG S400 User Manual 3.1 User Manual | Page 30 / 66
Pages: 1 … 28 29 30 31 32 … 66
  • wrong Brand
  • wrong Model
  • non readable
See also other documents in the category PRG Equipment:
  • Mbox Studio Manual 3.9 (158 pages)
  • Mbox Studio Manual 3.8 (194 pages)
  • Mbox Studio Manual v3.7 (172 pages)
  • Mbox Studio User Manual v3.6.1 (118 pages)
  • Mbox Mini Manual 3.9 (154 pages)
  • Mbox Director User Manual v3.9 (112 pages)
  • Mbox Director User Manual v3.8a (108 pages)
  • Mbox Director User Manual v3.7 (80 pages)
  • Mbox Director User Manual v3.6.1 (80 pages)
  • Mbox Designer Manual 3.9 (206 pages)
  • Mbox Remote Manual 3.9 (114 pages)
  • Mbox Designer Manual 3.8 (244 pages)
  • Mbox Mini Manual 3.8 (192 pages)
  • Mbox Designer User Manual v3.7 (232 pages)
  • Mbox Designer User Manual v3.6.1 (174 pages)
  • S400 Tools User Manual 3.1 (14 pages)
  • S400 Systems Networking Guide (66 pages)
  • Super Node (26 pages)
  • Node Plus (26 pages)
  • Ethernet Switch (14 pages)
Home Brands Popular manuals Recently added
Manuals Directory

© 2012–2025, azmanual.top
All rights reserved.