Q.- ü, Flowq2u2330, Q2-2330 – Toshiba Q-Flowsaver II User Manual
Page 90: Toshiba/houston, International corporation
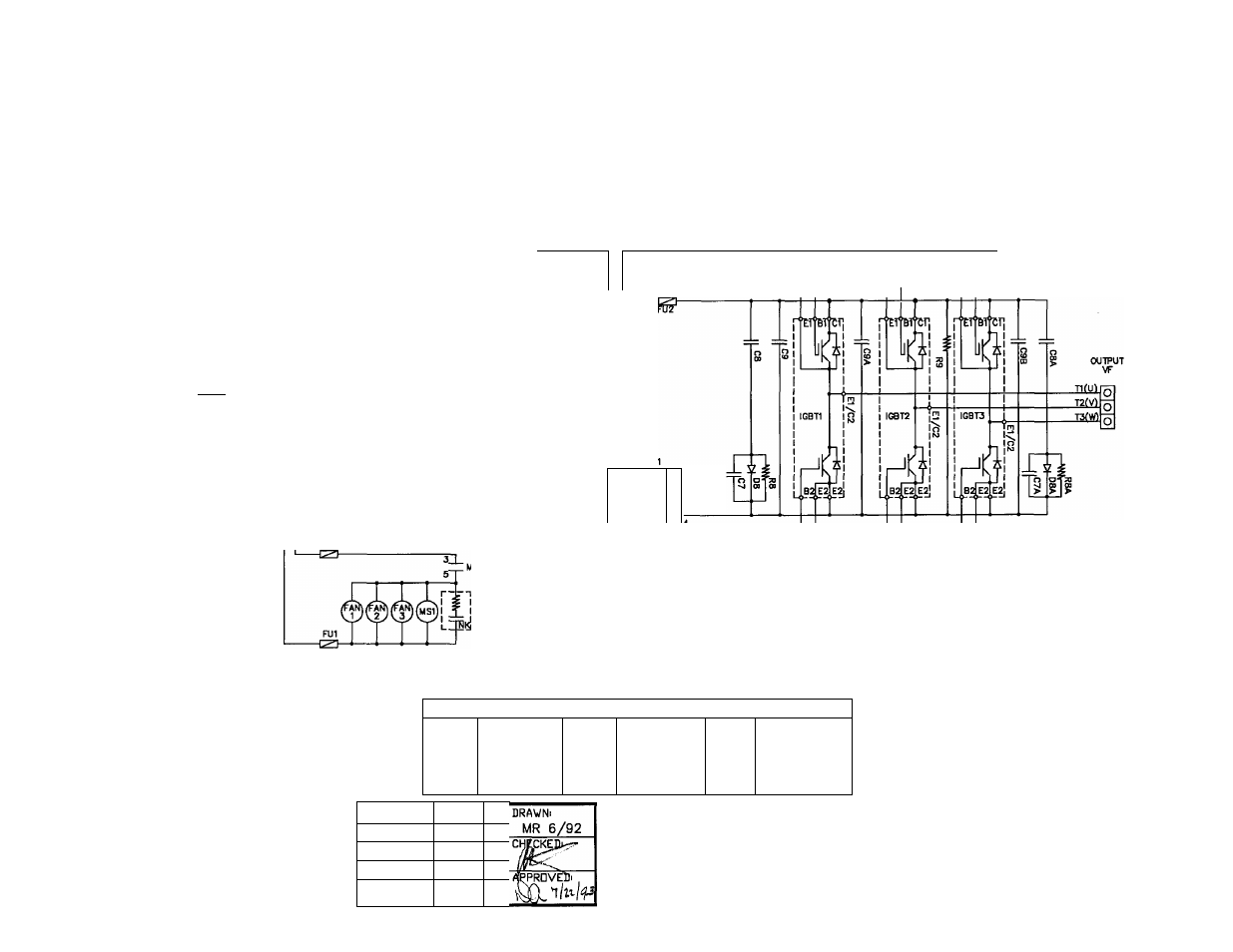
Attention! The text in this document has been recognized automatically. To view the original document, you can use the "Original mode".

OH
ov
30C
Í
CN8-1
CN8-3
1
3
.CN16-1
1
CNI
6-3
CONTROL AND BASE PC81
(OPERATION
panel
!
I^PCBZ
CN1-1/6Í---------- V
INPUT
200/230 VAC
50/60 HZ
L1(R)
o
r
fuse
"!
' OPTION
MOV 1-3
^7
F
t
!
ftì
w
A
11
11
II
M
44
$11$
11
i
U u L M Li M
LI
1 2 g
-4
c
N11-1/6
f f
1 ^
i i
T 1
w -*
n
0
z z
M ro
u
5 9
Cl
u
1 1
u -*
tr
w
L3 » ' T3
-m-
R21A
-m-
C1-C1B
R11
FU1A
r-s—wo.
CN4A-
-€>
HCT
,-Q.-__________ ________________________________________
Ü
irff
-* ro C4 >
s s
11
■TT‘
CONTROL AND BASE PCB1
\
COMPONENTS
^
1
!
KllA
GBT1-3
MOV 1-3
5gMA-1T
600\^ 200A
230VAC MA
МM'^2М^OHM
c
OPTIONS
250V 200A
7
;
-0
8
EON# 02211
7/93
MR
EON
DATE
BY
TOSHIBA/HOUSTON
INTERNATIONAL CORPORATION
USA
THIS MATERIAL IS THE EXCLUSIVE PROPERTY OF
TOSHIBA INTERNATIDNAL CORPORATION AND SHALL
NOT BE REPRODUCED« USEH OR DISCLOSED TO OTHERS
UNLESS PRIOR WRITTEN AUTHORIZATION IS OBTAINED.
TITLEi
FLOWQ2U2330
REVi
DRAWING ND.I
Q2-2330
A
B
