LINK Systems OmniLink 5000 User Manual
Page 96

7.4
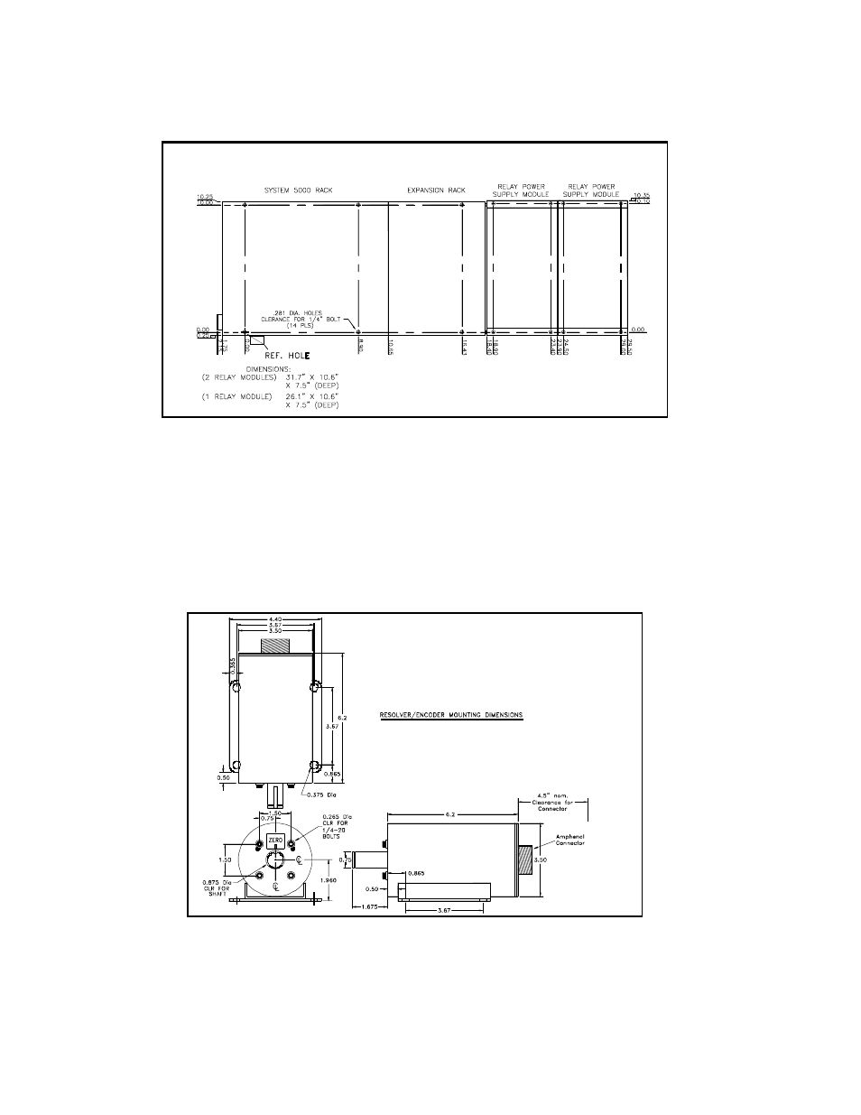
The mounting dimensions for all available assemblies are shown in Figure 7.5.
Figure 7.5 Card Rack and Output Power Supply
Mounting Dimensions
The mounting dimensions for the resolver/encoder assembly are shown in Figure 7.6. When the
resolver/encoder is driven by a chain, the spring base should be used. The resolver/encoder assembly
mounted on the spring base is shown in Figure 7.7. The shaft of the resolver/encoder is 3/4 " in diameter
with a 3/16 " wide keyway. The sprocket attached to the resolver/encoder must be bored and keyed to
fit. Do not install the sprocket without a proper size key. After installing sprocket and key, the clip ring
must be installed in the groove on the end of the resolver shaft.
Figure 7.6 Resolver/Encoder Mounting
Dimensions
