Appendix b, Software upgrade chip placement positions, J p 2 j p 1 p in 1 – Avery Dennison SNAP 656 User Manual
Page 67

Users Manual Model 656/636
Appendix B •
••
• 61B
Appendix B
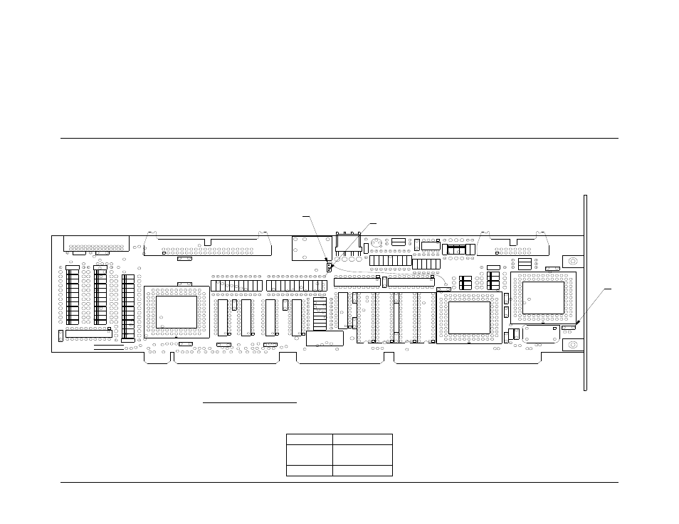
Software Upgrade Chip Placement Positions
Head Driver Board P/N 341106TT
P N .3 4 1 1 0 6 R E V 0
P A X A R
S N .
U 1 7
D
8
D
1
0
D
3
9
D
2
7
D
2
0
D
2
D
2
6
D
1
4
D
1
R 5
A
5
8
D
7
D
1
9
D
4
D
3
8
D
1
6
D
1
3
D 4 1
D 2 9
D 3 7
D 3
D 2 5
D 1 5
U 2
C
9
C 7
R
5
6
R
5
5
R
5
4
R
4
2
R
4
1
C 6
U 1 1
R
5
3
R
5
2
R
5
1
R
5
0
R
4
9
U 1 3
C 5
C 2
C 8
C 4
J 6
1
J 1
1 6
D
4
7
D
2
3
D
1
1
D
3
5
D
2
2
A
4
5
A
1
C 1
D
9
D
4
6
D
3
4
D
2
1
D
4
4
D
3
2
R
4
R
1
4
1 5
3 0
R 2
D 4 8
D 4 5
D 3 6
D 3 3
D 2 4
D 1 2
U
1
4
J P 1
C 2 1
J 3
C 2 2
U 1 6
R
5
7
R
6
0
R
5
9
D
6
D
4
3
C 2 0
C 1 9
C
1
8
R
6
4
C
1
7
R
6
2
R
6
1
D
3
1
D
1
8
D
3
0
R
6
3
D
4
0
D
2
8
D
1
7
D
5
D
4
2
J 4
U
9
R
3
R 2 2
U 4
R 1 3
R 1 2
C 1 6
U 1
R
2
4
R 9
R 2 1
R 1 9
R 1 0
C 3
R 1 1
U 8
U 7
R
2
3
Q 1
R 8
R 6
R 1 8
R 1 6
R 1 5
C 1 4
C
1
0
U 6
C
1
1
A
1
R 7
R 1 7
R
1
U 3
C
1
3
C
1
2
U 5
J
7
4
3
2
1
U 1 5
J 5
R 3 8
R
3
9
R
3
7
R
3
6
R
2
0
R
3
2
R
4
0
R
3
1
R
3
0
R
2
9
R
2
8
R
2
7
R
2
6
R
2
5
K
1
R
3
3
R
4
7
R
4
6
R
3
5
R
3
4
C
2
3
+
U 1 0
C 1 5
J 2
R
4
8
R
4
5
R
4
4
R
4
3
U 1 2
U 1 7
U 1
U 1 4
J P 2
J P 1
P IN 1
HEAD DRIVER BOARD, Upgradeable software I.C.'s include U1, U14, U17.
PLCC CHIPS align angled corner of chip with angled corner of socket that is counter clockwise to the arrow.
(Use chip removal tool P/N. 351156 for square I.C removal)
JUMPER
SETTING
JP1
On = 240DPI
Off = 300 DPI
JP2
1 to 2
