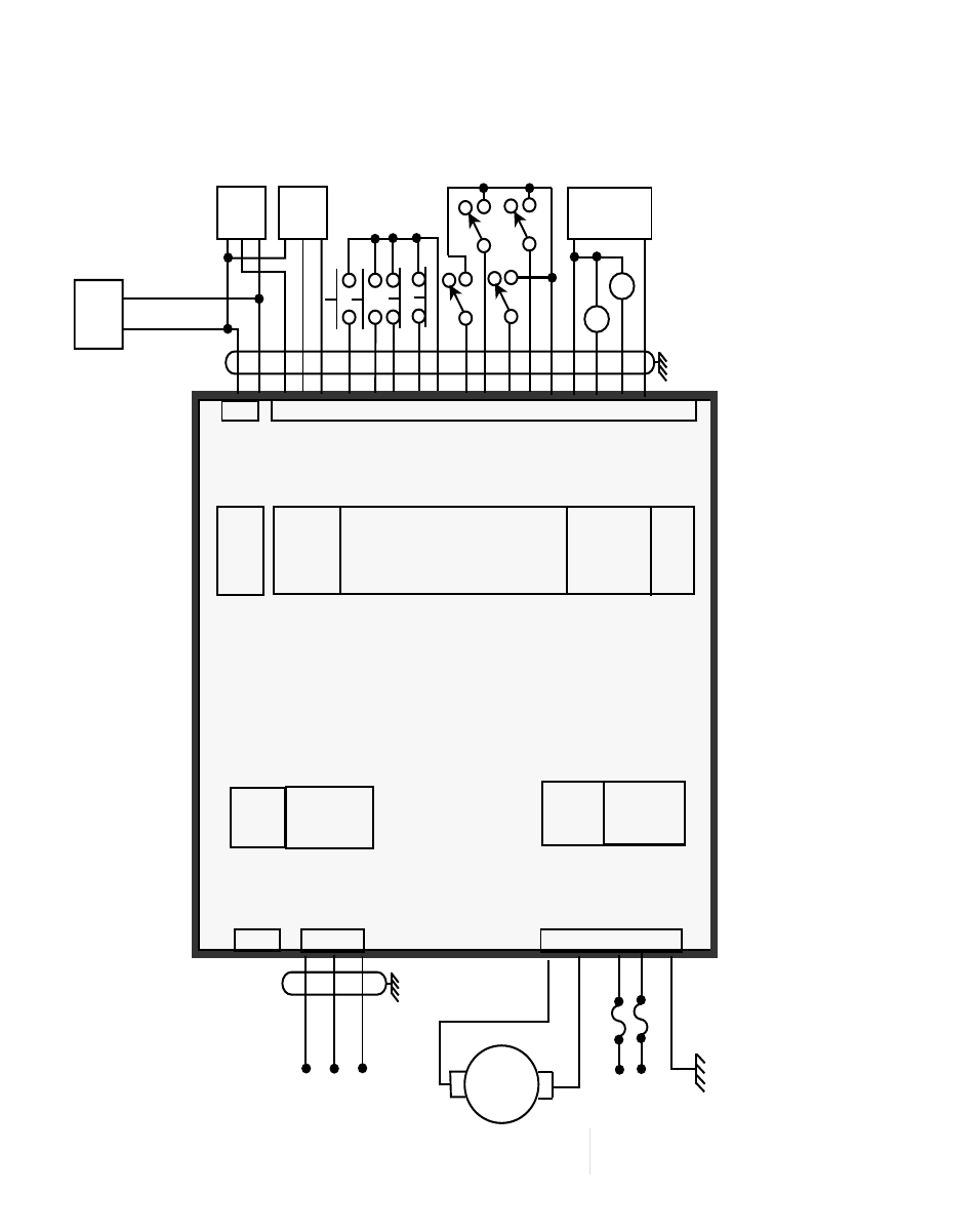
Figure 2-2 mlp–drive general w iring – CONTREX MLP-Drive User Manual
Page 20

2 - 4
*
U
s
e
1
1
5
V
A
C
w
it
h
M
L
P
-D
ri
v
e
m
o
d
e
l
#
3
2
0
0
-1
9
3
8
U
s
e
2
3
0
V
A
C
w
it
h
M
L
P
-D
ri
v
e
m
o
d
e
l
#
3
2
0
0
-1
9
3
9
L
1
*
N
e
u
t
o
r
L
2
G
N
D
/P
E
R
S
4
8
5
S
e
ri
a
l
C
o
m
m
u
n
ic
a
ti
o
n
s
L
E
A
D
_
F
Q
F
D
B
K
_
F
Q
C
O
M
R
U
N
J
O
G
R
–
S
T
O
P
F
–
S
T
O
P
C
O
M
M
S
T
/F
O
L
S
E
T
P
T
S
C
R
L
_
U
P
S
C
R
L
_
D
W
N
C
O
M
V
_
D
O
D
IG
_
O
U
T
1
D
IG
_
O
U
T
2
C
O
M
A
N
A
L
_
IN
C
O
M
J
1
J
4
J
3
T
/
R
+
T
/
R
–
C
O
M
_
A
U
X
RS485
COMM
I/O
PW
R
L
1
N
E
U
T
G
N
D
P
E
AC
POWER
MOTOR
ARM
A
1
+
A
2
-
FR
EQ
IN
PU
TS
DIG
IT
AL
IN
PU
TS
J
5
DIG
IT
AL
OU
TP
UT
S
5
V
_
D
I
C
O
M
R
u
n
J
o
g
R
-S
to
p
F
-S
to
p
L
e
a
d
F
re
q
u
e
n
c
y
S
e
n
s
o
r
F
e
e
d
b
a
c
k
F
re
q
u
e
n
c
y
S
e
n
s
o
r
+
5
V
D
C
E
x
te
rn
a
l
D
C
P
o
w
e
r
S
u
p
p
ly
+
5
V
C
O
M
+
5
V
S
IG
C
O
M
+
5
V
S
IG
C
O
M
5
0
V
M
A
X
+
V
C
O
M
R
1
R
2
E
x
te
rn
a
l
D
C
P
o
w
e
r
S
u
p
p
ly
T
D
/R
D
+
T
D
/R
D
–
C
O
M
D
C
P
M
M
o
to
r
1
2
3
1
2
3
4
5
1
2
F
u
s
e
s
1
A
+
F
L
A
2
5
0
V
1
2
3
4
5
6
7
8
9
1
0
1
1
1
2
1
3
1
4
1
5
1
6
1
7
1
8
1
9
AN
AL
IN
AUX
PWR
5
V
C
O
M
_
A
U
X
1
2
J
2
M
a
s
te
r/
F
o
ll
o
w
e
r
S
e
tp
o
in
t
S
e
le
c
t
S
c
ro
ll
U
p
S
c
ro
ll
D
o
w
n
+
-
A
1
A
2
Figure 2-2 MLP–Drive General W
iring
