Rockwell Automation 2755 AtomScan Bar Code Reader User Manual
Page 92

6–7
Hardware Operation
Publication 2755-6.9
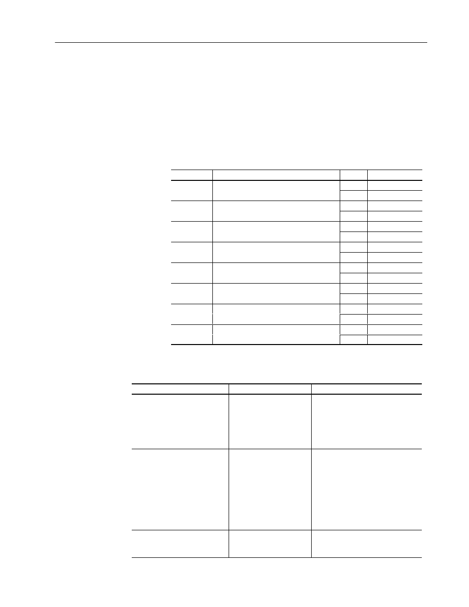
C. Compare the bit digits (1 or 0) to each bit location to
determine the reader function. For the binary number
01001101 (with the first zero being in bit location 7), the
reader’s status is even parity (bit = 0), (skip bit location 6; it
will always equal 1), the reader is not in a read cycle
(bit = 0), the motor is spinning and the reader is ready to read
(bit = 0), no NOVRAM error detected (bit = 0), a
communications error is detected (bit = 1), the command is
not received (bit = 1), and a command error is detected
(bit = 1).
Bit Location
Reader Function
Bit
Is
0
Even
7
Parity
1
Odd
0
Not Applicable
6
Always set to one
1
Not Applicable
0
Inactive
5
Reader is in a read cycle
1
Active
0
Active
4
Motor is spinning, reader is ready to read
1
Inactive
➀
0
Active
3
NOVRAM
➀
error detected
1
Inactive
0
Inactive
2
Communication error detected
1
Active
0
Inactive
1
Command received
1
Active
0
Inactive
0
Command error detected
1
Active
➀
NOVRAM status is valid only after the first status request after a NOVRAM read or write and is
only valid for one read or write.
If you are using the > command, refer to the following table.
If you Press
[>]
The Reader Reports
Example
After power-on (NOVRAM Read)
Whether the NOVRAM was
read correctly the first time
the status command was
received.
With the reader in a triggered mode
without a serial or edge trigger present,
power–off, then power–on and
press
[>]
. The reader responds
with <@> for a good load or
bad load.
After sending a Command
Whether the command was
sent correctly.
With the reader in a triggered mode
without a serial or edge trigger present,
press
[>]
to clear the error flags.
Then enter the desired command,
for example. Press
[>]
again.
The reader responds with if the
command was received,
was an error in the command, or
there was a serial data error.
After NOVRAM Write
Whether the NOVRAM was
written correctly.
The reader responds in the same
manner as after power–on
(NOVRAM read).
