Operational dimensions – Climax KM3000 KEY MILL User Manual
Page 3

Climax Portable Machining & Welding Systems Web site: climaxportable.com
Worldwide Phone:
1.503.538.2185 N. America Toll-Free: 1.800.333.8311 Fax: 1.503.538.7600 E-mail: [email protected]
page 3
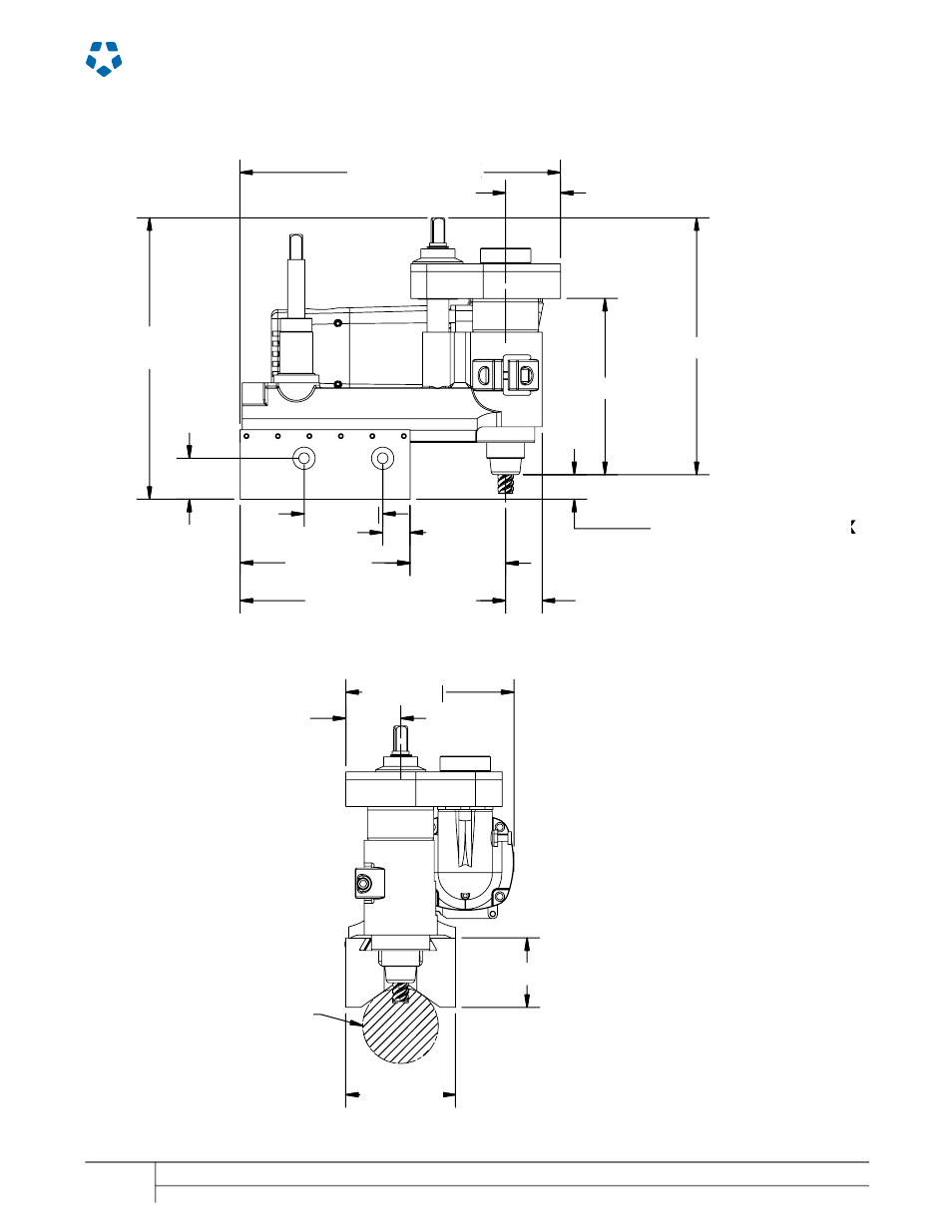
OPERATIONAL DIMENSIONS
Dimensions in inch (mm)
Portable Machine Tools, Inc. ©
Newberg, OR USA 97132
WWW.CPMT.COM inside U.S. 1-800-333-8311
KM3000
6.98 [177]
10.18 [259]
6.75 [171]
1.45 [37]
.98 [25] MIN-2.73[69] MAX
1.75[44.5] TRAVEL
2.18 [55]
12.73 [323] MAX
10.54 [268] -4.54[115]
6[152] TRAVEL
3.79 [96]
MAX
11.16 [283] MIN
12.91[328] MAX
6.68 [170]
2.18 [55]
1.5-4.5 [38-114]
STANDART CLAMP
UP TO 10.5[266] WITH
OPTIONAL CHAIN CLAMP
DOWN TO .75[19]WITH
OPTIONAL SHIM KIT
4.36 [111]
2.75 [70]
3.12 [79]
1.09 [28]
1.62 [41]
11.16 (283.5) min
12.91 (327.9) max
12.73 (323.3) max
2.18 (55.4)
10.18 (258.6)
6.98 (177.3)
3.12 (79.2)
6.75 (171.5)
1.09 (27.7)
3.79 (96.3)
Max
10.54 (267.7) - 4.54 (115.3)
6.0 (152.4) travel
1.45 (36.8)
6.68 (169.7)
2.18 (55.4)
2.75 (69.9)
4.36 (110.7)
0.98 (24.9) min - 2.73 (69.3) max
1.75 (44.5) travel
1.5 - 4.5 (38.1 - 114.3) standard clamp
Up to 10.5 (266.7) with optional
chain clamp
Down to 0.75 (19.05) with optional
shim kit
1.62 (41.2)