Search
Directory
Brands
Toa manuals
Audio
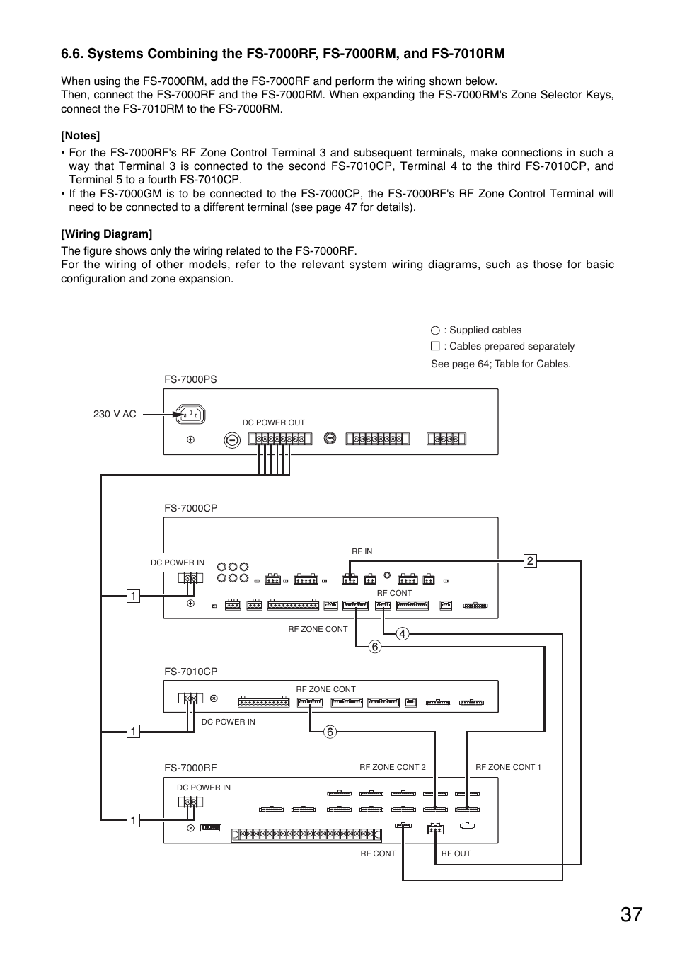
FS-7000 SERIES Installation
Manual
Toa FS-7000 SERIES Installation User Manual
Page 37
Text mode
Original mode
Toa FS-7000 SERIES Installation User Manual | Page 37 / 92
Pages:
1
…
35
36
37
38
39
…
92
wrong Brand
wrong Model
non readable
See also other documents in the category Toa Audio:
FS-970 SERIES
(56 pages)
FS-971 SERIES
(44 pages)
FS-971
(1 page)
RM-971
(36 pages)
FS-7000 SERIES Manual
(40 pages)
IR-801AF
(8 pages)
JB-031B
(1 page)