Slide number 2, Instructions d’installation, Toyota hilux – Draw-Tite 75730 MAX-FRAME RECEIVER User Manual
Page 2: Numéro de pièce, Nota : visserie similaire des deux côtés

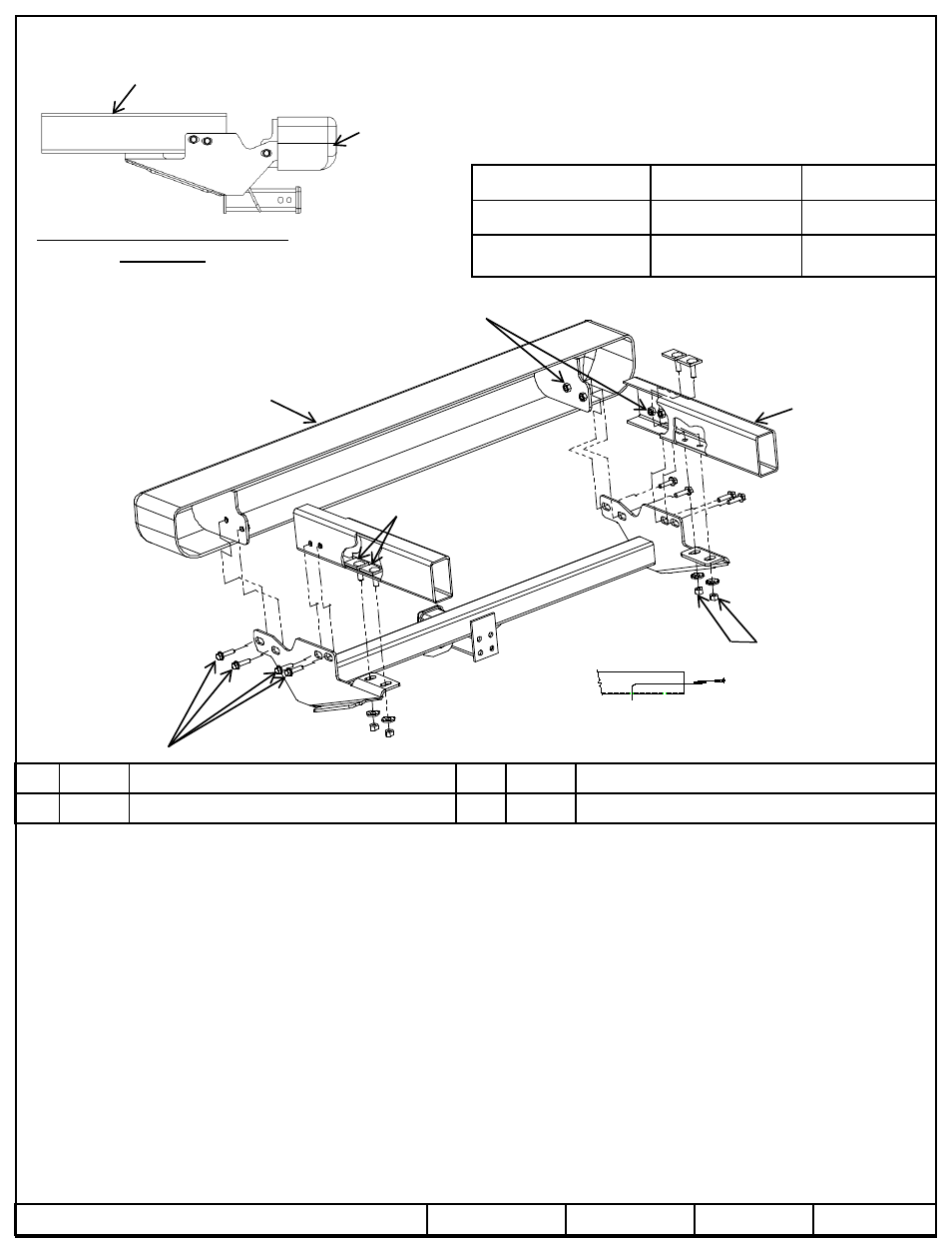
Instructions d’installation
Toyota Hilux
Numéro de pièce :
75730
Attelage montré dans la position
appropriée
Équipement requis : Fil de tirage (fourni)
Clés : 7/8” et 18 mm
Écrous à souder
existants
Pare-chocs
1.
Enlever les boulons qui maintiennent le pare-chocs en place, en veillant à ne pas laisser tomber ce dernier.
2.
Abaisser le pare-chocs et enlever les boulons et la ferrure qui fixent le support de pare-chocs du longeron. Remettre les ferrures
au propriétaire en vue d'une réinstallation éventuelle. Visserie à réinstaller.
3.
Soulever l'attelage à sa position et reposer les boulons (enlevés à l'étape 2) dans les écrous à souder situés sur le longeron, là où
les supports de pare-chocs ont été enlevés.
4.
À l'aide du fil de tirage, insérer les espaceurs et les boulons de carrosserie dans le longeron, puis dans les trous dans le bas du
longeron.
5.
Retirer les fils de tirage et poser une rondelle conique et des écrous hexagonaux comme illustré.
6.
Réinstaller le pare-chocs dans les fentes arrière du support à l'aide des boulons restants enlevés à l'étape 1.
7.
Serrer toute la visserie selon les spécifications de couple.
©2011 Cequent Performance Products
Feuille 2 de 3
75730N
9-9-11
Rev. A
Qté (4)
Boulons de carrosserie 1/2-13 X 2.00 Gr5
Qté (4)
Rondelle conique 1/2”
Qté (4)
Espaceurs ¼ X 1.50 X 2.00
Qté (4)
Écrou hex. – 1/2-13
Nota : Vérifier l’attelage fréquemment, en s’assurant que toutes les fixations et la boule sont serrées adéquatement. Si l’attelage est enlevé, boucher tous les trous
percés dans le coffre ou la carrosserie afin de prévenir l’infiltration d’eau ou de gaz d’échappement. Un attelage ou une boule endommagés doivent être enlevés
et remplacés. Observer les mesures de sécurité appropriées en travaillant sous le véhicule et porter des lunettes de protection. Ne jamais utiliser une torche pour
découper un accès ou un trou de fixation.
Ce produit est conforme aux normes V-5 et SAE J684 de la V.E.S.C. (État de New York) concernant les spécifications en matière de sécurité des systèmes
d’attelage.
Visserie : 75730F
Ne pas excéder les spécifications de poids du
fabricant du véhicule de remorquage, ni
Points d'accès au câblage : PU3 et PU4
Form: F205 Rev A 5-6-05
Type d'attelage
Poids brut max. de la
remorque (lb)
Poids max. au timon
(lb)
Répartition de charge
9000 (4086 kg)
900 (409 kg)
Sans répartition de charge -
Montage sur boule
6000 (2724 kg)
900 (409 kg)
Nota : Visserie
similaire des
deux côtés
Cadre
Boulons existants - deux côtés
Trou existant
Plier le fil de tirage pour tenir le
bloc à l'écart du boulon.
Exemple avec fil de tirage
Cadre
Pare-chocs
Serrer toutes les fixations 1/2 po au couple de 75 lb-pi (102 N*m).
Serrer toute la visserie M12 existante au couple de 75 lb-pi. (102 N*m).