Instrucciones de instalación, Cadillac deville cadillac dts, Números de partes – Draw-Tite 36287 FRAME HITCH User Manual
Page 3

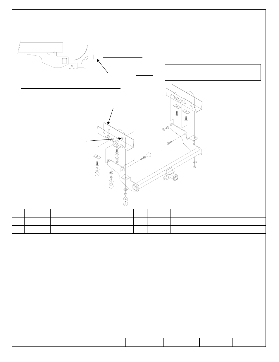
Instrucciones de instalación
Cadillac DeVille
Cadillac DTS
Números de partes:
06298
36287
90142
El enganche se muestra en la posición correcta
Ubicación del acceso al cableado: PC3, PC4
Equipo necesario: cable de halar (incluido)
Llaves: 7/8, 13mm
Brocas de taladro: Ninguna
Tornillos iguales en ambos costados.
1.
Levante el enganche a su posición.
2.
Instale los dos (2) pernos M8 dentro de las tuercas para soldar existentes como se muestra arriba.
3.
Inserte el resto de tornillos como se muestra arriba. Nota: Los pernos de 1/2 y los bloques se deben insertar de forma
separada.
Apriete todos los tornillos 1/2 con una llave de torsión a 75 Lb.-pies. (102 N*M)
Rev. C
3-10-06
N36287
Hoja 3 de 3
z
2005, 2006 Cequent Towing Products
Cable de halar
Cant. (1)
6
Bloque
Cant. (4)
3
Tuerca hexagonal 1/2-13
Cant. (4)
5
Perno de carruaje 1/2-13 X 1.75
Cant. (4)
2
Arandela cónica 1/2”
Cant. (4)
4
Perno M8 X 1.25 X 35
Cant. (2)
1
Apriete todos los tornillos M8 con una llave de torsión a 25 Lb.-pies. (34 N*M)
3500 (1589 Kg) LB Peso máximo bruto del remolque
300 (136 Kg) LB Peso máximo de la horquilla
No supere el valor inferior entre la calificación del
fabricante del vehículo del remolque o
La barra de tracción se debe
usar en posición levantada
únicamente.
Kit de barra tracción: 36071
Kit de tornillos: K36287
Tuerca para soldar
Larguero del bastidor
Nota: Revise el enganche con frecuencia, verificando que todos los tornillos sujetadores y la bola estén correctamente apretados. Si se quita el
enganche, tape todos los orificios en el colector del baúl u otros paneles de la carrocería para evitar la entrada del agua y los gases del escape.
Se debe retirar y reemplazar un enganche o bola que se haya dañado. Observe las precauciones de seguridad al trabajar por debajo del
vehículo y use protección visual. No corte el acceso o los orificios del accesorio con soplete.
Este producto cumple con las especificaciones y requisitos de seguridad para conectar dispositivos y sistemas de remolque del estado de
Nueva York. V.E.S.C. Regulación V-5 y SAE J684.
Form F206 Rev A 5605