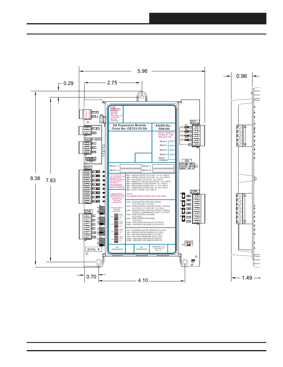
Overview, Sa expansion module dimensions, Sa e-bus controller technical guide – Orion System SA E-BUS Controller User Manual
Page 7
See also other documents in the category Orion System Hardware:
- VCM-X (88 pages)
- VCC-X Controller (120 pages)
- MUA II Controller v.2 (96 pages)
- VCM-X/RNE Controller Operator Interface SD (92 pages)
- MUA II Controller v.2 (80 pages)
- RNE Modular Controller (88 pages)
- OE365-15-EBA (8 pages)
- E-BUS Distribution (12 pages)
- GBD-X Controller (12 pages)
- PT-Link II N2 (72 pages)
- PT-Link II BACnet (60 pages)
- GPC-XP Controller (60 pages)
- Lag Controller (56 pages)
- OE361-13 CommLink 5 (10 pages)
- PT-Link II LON (60 pages)
- Non-Modular VAV/Zone Controller (36 pages)
- OE338-23-XX (6 pages)
- MUA II D Controller (24 pages)
- OE742-XX-VAVZ (40 pages)
- SA Controller (68 pages)
- SA Controller (70 pages)
- VCM Operator Interfaces (52 pages)
- PT-Link-LON (40 pages)
- VCM-X E-BUS Component (128 pages)
- VAV/Zone Controller (28 pages)
- VCM Controller (60 pages)
- VCM Component (96 pages)
- MHGRV-X (26 pages)
- MODGAS-XWR (28 pages)
- MODGAS-X (28 pages)
- PREHEAT-X (28 pages)
- Full Digital Module (16 pages)
- One Condenser Head Pressure Module (24 pages)
- Two Condenser Head Pressure II Module (16 pages)
- Dual Electronic Expansion Valve Module (24 pages)
- Water Source Heat Pump X2 Module (32 pages)
- Dual Digital Module (16 pages)
- Two Condenser Head Pressure Module Tulsa (24 pages)
- VCM-X/RNE Operator Interfaces (84 pages)
- Water Source Heat Pump Module (20 pages)
- Water Source Heat Pump Module Tulsa (20 pages)
- MHGRV II (12 pages)
- MODGAS II (22 pages)
- MHGRV III (20 pages)