Draw-Tite 63181 TOW BAR User Manual
Page 2

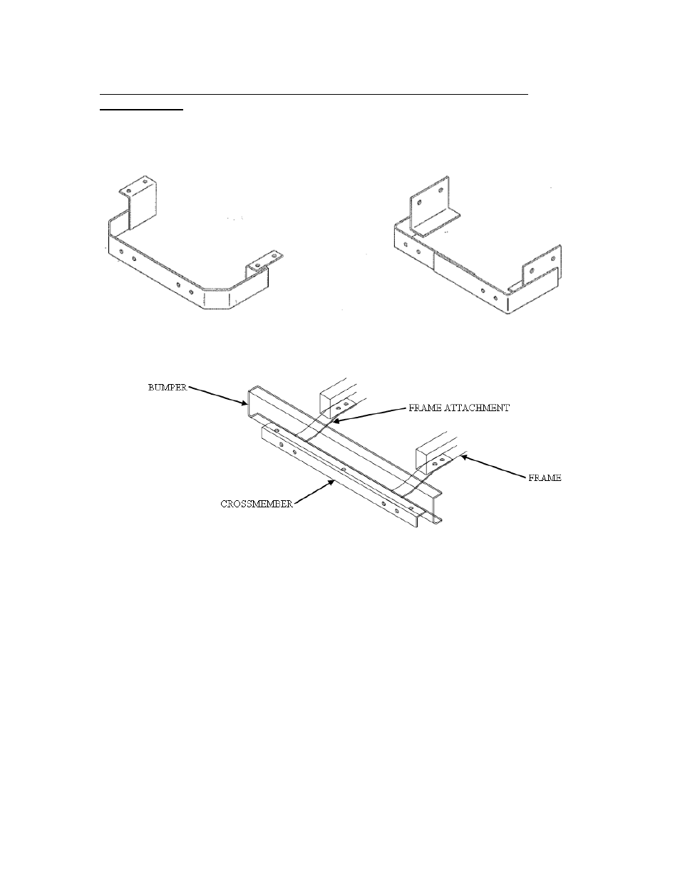
Towed vehicle attachment – NOT INCLUDED – (Shown for demonstration
purposes only)
A structure must be fabricated to allow the tow bar to be attached to the frame of the
towed vehicle. Some typical frame attachments are shown below. See your
professional Installer/Fabricator to have attachments made and installed.
If the bumper is used for support, it must be reinforced with frame attachments. A typical
way of reinforcing a bumper is shown below.
These frame attachments should be attached within 2” of where the tow bar brackets are
to be attached. These frame attachments should be made from at least ½” X 2” flat bar
stock. Never attach through plastic fascia covering a bumper. This fascia must be
trimmed, with customer approval, to provide a secure attachment.
2
- 41991 SERVICE BODY RECEIVER (6 pages)
- 41990 SERVICE BODY RECEIVER (6 pages)
- 65064 FRONT MOUNT RECEIVER (3 pages)
- 65056 FRONT MOUNT RECEIVER (6 pages)
- 65050 FRONT MOUNT RECEIVER (6 pages)
- 65052 FRONT MOUNT RECEIVER (3 pages)
- 65028 FRONT MOUNT RECEIVER (3 pages)
- 65023 FRONT MOUNT RECEIVER (3 pages)
- 65021 FRONT MOUNT RECEIVER (3 pages)
- 65016 FRONT MOUNT RECEIVER (3 pages)
- 65004 FRONT MOUNT RECEIVER (3 pages)
- 65005 FRONT MOUNT RECEIVER (3 pages)
- 65060 FRONT MOUNT RECEIVER (3 pages)
- 65057 FRONT MOUNT RECEIVER (1 page)
- 65063 FRONT MOUNT RECEIVER (3 pages)
- 65062 FRONT MOUNT RECEIVER (3 pages)
- 65046 FRONT MOUNT RECEIVER (3 pages)
- 65003 FRONT MOUNT RECEIVER (3 pages)
- 65029 FRONT MOUNT RECEIVER (3 pages)
- 65024 FRONT MOUNT RECEIVER (3 pages)
- 65049 FRONT MOUNT RECEIVER (3 pages)
- 65022 FRONT MOUNT RECEIVER (3 pages)
- 65025 FRONT MOUNT RECEIVER (3 pages)
- 65015 FRONT MOUNT RECEIVER (3 pages)
- 65014 FRONT MOUNT RECEIVER (3 pages)
- 65061 FRONT MOUNT RECEIVER (3 pages)
- 65043 FRONT MOUNT RECEIVER (3 pages)
- 65032 FRONT MOUNT RECEIVER (3 pages)
- 65030 FRONT MOUNT RECEIVER (3 pages)
- 65017 FRONT MOUNT RECEIVER (3 pages)
- 65053 FRONT MOUNT RECEIVER (4 pages)
- 65001 FRONT MOUNT RECEIVER (3 pages)
- 65055 FRONT MOUNT RECEIVER (3 pages)
- 65048 FRONT MOUNT RECEIVER (3 pages)
- 65008 FRONT MOUNT RECEIVER (3 pages)
- 65009 FRONT MOUNT RECEIVER (3 pages)
- 65051 FRONT MOUNT RECEIVER (3 pages)
- 65041 FRONT MOUNT RECEIVER (3 pages)
- 65031 FRONT MOUNT RECEIVER (3 pages)
- 41935 ULTRA FRAME RECEIVER (3 pages)
- 41931 ULTRA FRAME RECEIVER (1 page)
- 41920 ULTRA FRAME RECEIVER (1 page)
- 41933 ULTRA FRAME RECEIVER (3 pages)
- 41904 ULTRA FRAME RECEIVER (3 pages)
- 41945 ULTRA FRAME RECEIVER (3 pages)