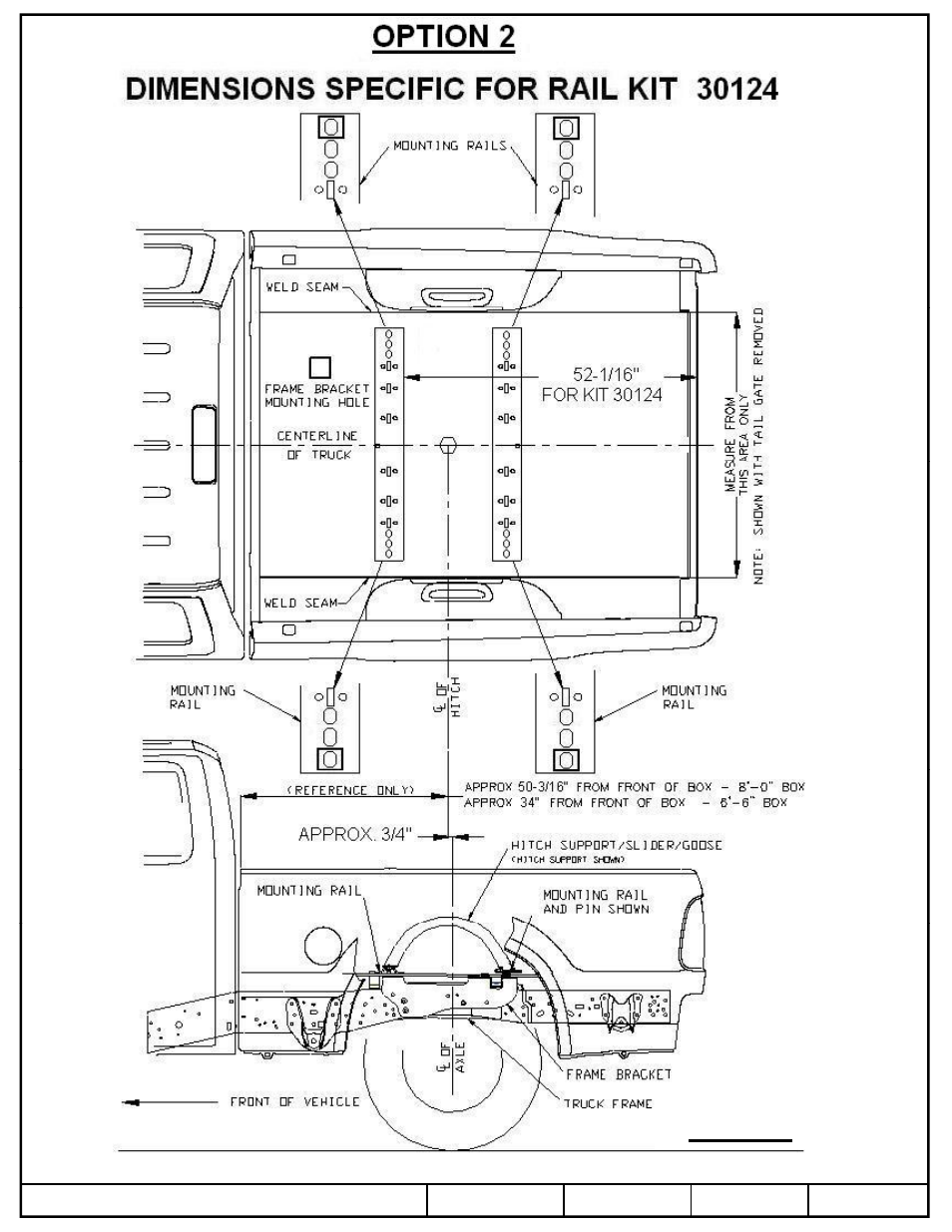
Figure 8 – Draw-Tite 50073 CUSTOM QUICK INSTALL BRACKETS User Manual

Page 7

background image

Figure 8

z

2010 Cequent Performance Products, Inc.

Sheet 7 of 7

50073N

12/10/10

Rev. A