Directives d’installation, Volkswagen touareg, Numéros de pièce – Draw-Tite 75363 MAX-FRAME RECEIVER User Manual
Page 2

Directives d’installation
Volkswagen Touareg
Numéros de pièce :
44530
75363
82301
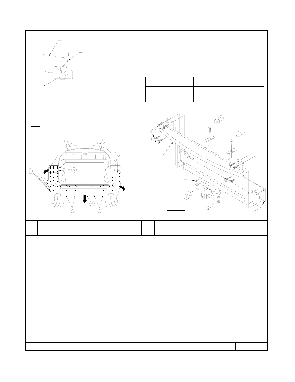
Attelage montré dans la position appropriée
Équipement requis :
Clés : 18 mm, 7/8 po, T-25, T-27,
Mèches : 1/2 po
1. Enlever le plastique de carénage arrière comme suit :
a. Enlever les feux arrière en retirant deux vis de chaque côté de l’intérieur du hayon, puis soigneusement en tirant sur les feux en ligne droite.
b. Enlever de chaque côté les deux vis qui fixent le plastique de carénage sous les feux arrière.
c. Retirer les cinq vis à l’intérieur de chaque protecteur de passage de roue..
d. Enlever le panneau d’accès du bas du plastique de carénage et le remettre au propriétaire du véhicule.
e. Retirer les quatre vis du bas du plastique de carénage.
f. Tirer délicatement en ligne droite sur le plastique de carénage pour le dégager.
2. Retirer le pare-chocs en enlevant les quatre boulons de chaque côté qui fixent le pare-chocs au panneau arrière du véhicule. Conserver les boulons
pour l’installation de l’attelage/pare-chocs.
3. Soulever l’attelage et le pare-chocs à la position illustrée, l’attelage en sandwich entre le panneau d’extrémité du véhicule et le pare-chocs. Avant de
serrer, placer l’attelage pour que le support central soit en contact avec la surface inférieure du pare-chocs en acier, comme illustré à la figure 1.
4. En utilisant l’attelage comme gabarit, percer deux trous dans le pare-chocs à travers les trous du support central d’attelage.
Note:
L’utilisation d’une fraise pour le perçage peut faciliter l'installation de l’attelage.
5. Installer les boulons de carrosserie et les espaceurs dans les trous du pare-chocs (percés à l’étape 4) et à travers les trous du support central
d’attelage. Fixer à l’aide des rondelles freins et des écrous.
6. Réinstaller le plastique de carénage.
Rév. E
1-12-09
75363N
Feuille 2 de 3
z
2005, 2008, 2009 Cequent Towing Products
Écrou hexagonal 1/2 po
Qté (2)
4
Espaceur 1/4 x 1 x 3 po
Qté (2)
2
Rondelle frein 1/2 po
Qté (2)
3
Boulon de carrosserie 1/2 X 1 3/4 po
Qté (2)
1
Serrer toute la visserie 1/2-13 GR5 en appliquant un couple de serrage de 75 lb-pi. (102 N-M)
Serrer toute la visserie M12 CL8.8 en appliquant un couple de serrage de 68 lb-pi. (92 N-M)
Remarque : Vérifier l’attelage fréquemment, en s’assurant que toute la visserie et la bille sont serrées adéquatement. Si l’attelage est enlevé, boucher tous les trous percés
dans le coffre ou la carrosserie afin de prévenir l’infiltration d’eau ou de gaz d’échappement. Un attelage ou bille endommagés doivent être enlevés et remplacés.
Observer les mesures de sécurité appropriées en travaillant sous le véhicule et porter des lunettes de protection. Ne jamais utiliser une torche pour découper un accès ou
un trou de fixation.
Ce produit est conforme aux normes V-5 et SAE J684 de la V.E.S.C. (État de New York) concernant les spécifications en matière de sécurité des systèmes d’attelage .
Trousse de visserie : 75363F
Ne pas excéder les spécifications du
fabricant de véhicules de remorquage, ou
600 (272 kg)
6000 (2 724 kg)
Capacité de charge –
Montage à bille
600 (272 kg)
6000 (2 724 kg)
Répartition de la charge
Poids max. au
timon (LB)
Poids brut max. de
la remorque (LB)
Type d’attelage
Emplacement de l’accès au câblage : SUV3, SUV4
Form: F205 Rev A 5-6-05
Boulons
existants
8 endroits
Support central d’attelage
Pare-chocs du véhicule
Plastique de carénage
Pare-chocs du véhicule
Panneau d’extrémité du
véhicule
FIGURE 1
FIGURE 2
Note: L’utilisation d’une fraise pour le perçage
peut faciliter l'installation de l’attelage.