Remko rbw – REMKO RBW 300 PV User Manual
Page 8

Integrated heat exchanger
Series
RBW 300 PV
RBW 300 PV-S
Solar heat exchanger
m
2
---
1.5
Heat exchanger connection
Inches (mm)
---
G 3/4" (19.05)
Information provided without guarantee! We reserve the right to make technical changes
within the framework of technical advancement.
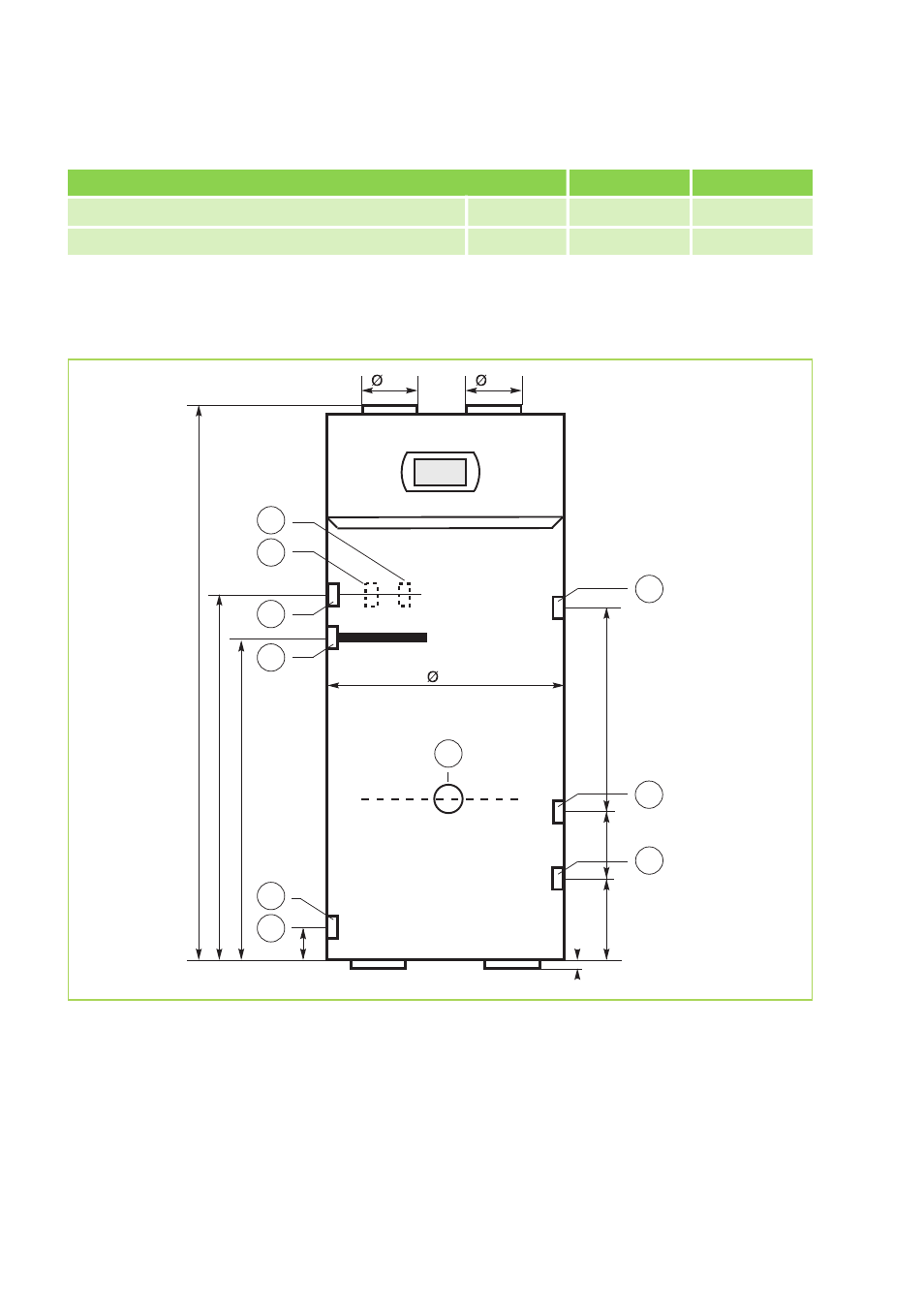
2.2 Unit dimensions and designations of the pipe connections
2
1
4
3
5
7
8
10
9
500
300
240
16,5
100
1105
1200
1870
640
150
150
6
Fig. 1: Dimensions and designations of the pipe connections (data in mm)
1:
Circulation G 3/4"
2:
Condensate drain Rp 1/2
3:
Hot water outlet G 3/4"
4:
False anode
5:
Cold water inlet G 3/4"
6:
Drainage G 3/4"
7:
Heating-return flow heat exchanger G 3/4"
8:
Heating-inlet heat exchanger G 3/4"
9:
Immersion sleeve
10: Heating coil
We reserve the right to make changes within the framework of technical advancement!
REMKO RBW
8