EVCO c-pro nano CHIL User Manual
Page 30

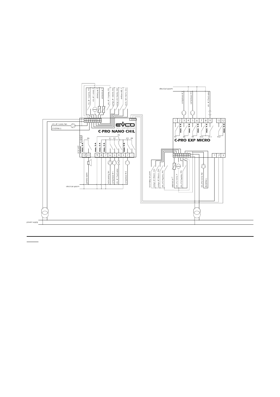
C-PRO NANO CHIL AND C-PRO MICRO CHIL – APPLICATION MANUAL
Pag. 30
2.6
Air-to-air twin-circuit chiller units and air-to-air twin-circuit
chiller units + heat pump
2.6.1
Air-to-air twin-circuit chiller units
Using C-PRO NANO CHIL and C-PRO EXP MICRO.
The power supplies of C-PRO NANO CHIL and C-PRO EXP MICRO must be galvanically isolated from each
other.
This manual is related to the following products:
See also other documents in the category EVCO Hardware:
- EV3B22N7 (2 pages)
- EV3B23N7 (2 pages)
- EV3B31N7 (2 pages)
- EV3X21N7 (2 pages)
- EVK203N7 (2 pages)
- EVK204N9 (5 pages)
- EVK214N9 (6 pages)
- EVX201N7 (8 pages)
- EVX225N7 (6 pages)
- EVXS214N9 (8 pages)
- EVXV201N7 (9 pages)
- EVR202N7 (10 pages)
- EVRS204N9 (8 pages)
- EVRS225N9 (10 pages)
- TM102A (2 pages)
- EVK404N9 (8 pages)
- EPD4BF3 (2 pages)
- EPD4BF3 (70 pages)
- EV6223P7 (2 pages)
- EVB1226N9XXC (92 pages)
- EVB1214N9 (88 pages)
- EVRSF204N9VRB (8 pages)
- EVF204N9 (8 pages)
- EVF205N9 (8 pages)
- EVF214N9 (8 pages)
- EVF215N9 (8 pages)
- EK820AP7 (4 pages)
- EK825AP7 (14 pages)
- EVCSR818P9EF (94 pages)
- EVF815P9 (2 pages)
- EVF815P9 (60 pages)
- EVF818P9 (2 pages)
- EVF818P9 (76 pages)
- EVX802P7 Installer manual (66 pages)
- EVX802P7 Installer manual (2 pages)
- EVXS815P9 Installer manual (2 pages)
- EVXS815P9 Installer manual (60 pages)
- EVXV802P7 Installer manual (2 pages)
- EVXV802P7 Installer manual (66 pages)
- EVK802P7 (2 pages)
- EVFTFT818P7U (2 pages)
- EVFTFT818P7U Installer manual (94 pages)
- EV7601J6 (2 pages)
- EV9303J9 (2 pages)
- EV9313J9 (2 pages)
