Dynojet logo panels and pit covers, Removing the dynojet logo panels—above ground – Dynojet 424 Linx: DWRT Installation Guide User Manual
Page 11

4 2 4 L I N X I N S T A L L A T I O N
Dynojet Logo Panels and Pit Covers
Version 6
Linx Installation for Model 424 Automotive Dynamometers
7
. . . . . . . . . . . . . . . . . . . . . . . . . . . . . . . . . . .
DYNOJET LOGO PANELS AND PIT COVERS
The Linx option can only be installed on one side of the dyno, refer to Figure 1. When
the Linx option is being installed on an existing above ground dyno, the Dynojet logo
panels must be removed. When the Linx option is being installed on an existing in
ground dyno, the pit covers must be removed.
If your Dynojet logo panels or pit covers are already removed, continue with “Inner
Mounting Plate Installation” on page 10.
R
EMOVING
THE
D
YNOJET
L
OGO
P
ANELS
—A
BOVE
G
ROUND
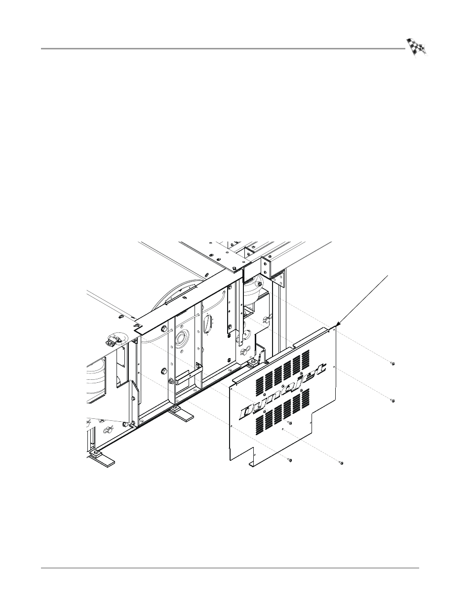
Repeat the following steps for each logo panel.
1
Remove the five 1/4-20 x 5/8-inch pan-head torx screws securing the logo panel to
the mounting brackets. Set these screws aside.
2
Remove the logo panel and set aside.
Figure 2: Remove the Dynojet Logo Panel
XD001
logo panel
- 150: Kart and ATV Dynamometers (44 pages)
- 150: Dyno Drum Cover for Kart and ATV Dyno Motorcycle Option (3 pages)
- 150: WinPEP 7 (170 pages)
- 168: Eddy Current Brake (27 pages)
- 200: Eddy Current Brake (45 pages)
- 200: Replacing the Starter Ring Gear (7 pages)
- 200: Safety Switch (3 pages)
- 200: DynoWare EX+ Upgrade Installation Guide for Motorcycle Dynos (20 pages)
- 200: Throttle Stop (3 pages)
- 200: Eddy Current Brake Driveline Upgrade (17 pages)
- 200i: High Pressure Blower (20 pages)
- 200: Installation Guide (73 pages)
- 200i: Pit Installation Guide (154 pages)
- 200i: Pre-Installation Guide (52 pages)
- 200i: Installation Guide (184 pages)
- 200i: Air Brake and EEC Kit (40 pages)
- 200i: Dynamometer Wiring Schematic (2 pages)
- 200i: Folding Ramp (15 pages)
- 200i: Control Panel Interface Upgrade (S/N 201xxxx) (31 pages)
- 200i: Control Panel Interface Upgrade (S/N 202xxxx) (29 pages)
- 200i: Motorcycle Exhaust Extraction System Drawings (18 pages)
- 200iP: Pit Installation Guide (148 pages)
- 200iPX: Installation Guide (163 pages)
- 200iPX: Installation Guide (52 pages)
- 200ix: Pit Installation Guide (163 pages)
- 200ix: Extended Carriage and Trike Adapter Assembly (15 pages)
- 200iX: Upgrade Installation Guide (56 pages)
- 200ix: Extended Carriage with Trike Adapter Assembly (13 pages)
- 224: CE Package (17 pages)
- 224: Maintenance Guide (35 pages)
- 224: Installation Guide (78 pages)
- 224/4WD: Installation Guide (77 pages)
- 224: Pit Installation Guide (56 pages)
- 224x: Above Ground Four Post Lift Dimensions (1 page)
- 224x: Pre-Installation Guide (63 pages)
- 224x: 4WD Dyno Air and Wiring Schematic (2 pages)
- 224: Eddy Current Brake (73 pages)
- 224: Pit Eddy Current Brake (69 pages)
- 224xLC2: Quickstart guide for DWRT (2 pages)
- 248: Pit Installation Guide (74 pages)
- 248: Installation Guide (58 pages)
- 248: DynoTRAC User Guide with Variable Brake (14 pages)
- 248: DynoWare EX+ Upgrade (22 pages)
- 248: Optical RPM Sensor (22 pages)
- 248: Proportional Air Brake (21 pages)
