Setting guidelines on the rear view, Image, Other functions – Pioneer AVIC-F550BT User Manual
Page 111: Setting guidelines on the rear view image

Black plate (111,1)
Switching to the rear view mode
1
Press the HOME button to display the
“Top Menu” screen.
2
Tap [Rear Camera].
This changes the setting to
“On”.
The rear view screen appears.
p Tapping on the screen switches to the cur-
rently selected AV operation screen. If noth-
ing is done for seven seconds, it
automatically returns to the rear view
screen.
3
Press the HOME button to display the
“Top Menu” screen.
4
Tap [Rear Camera].
Turns off the rear view camera function.
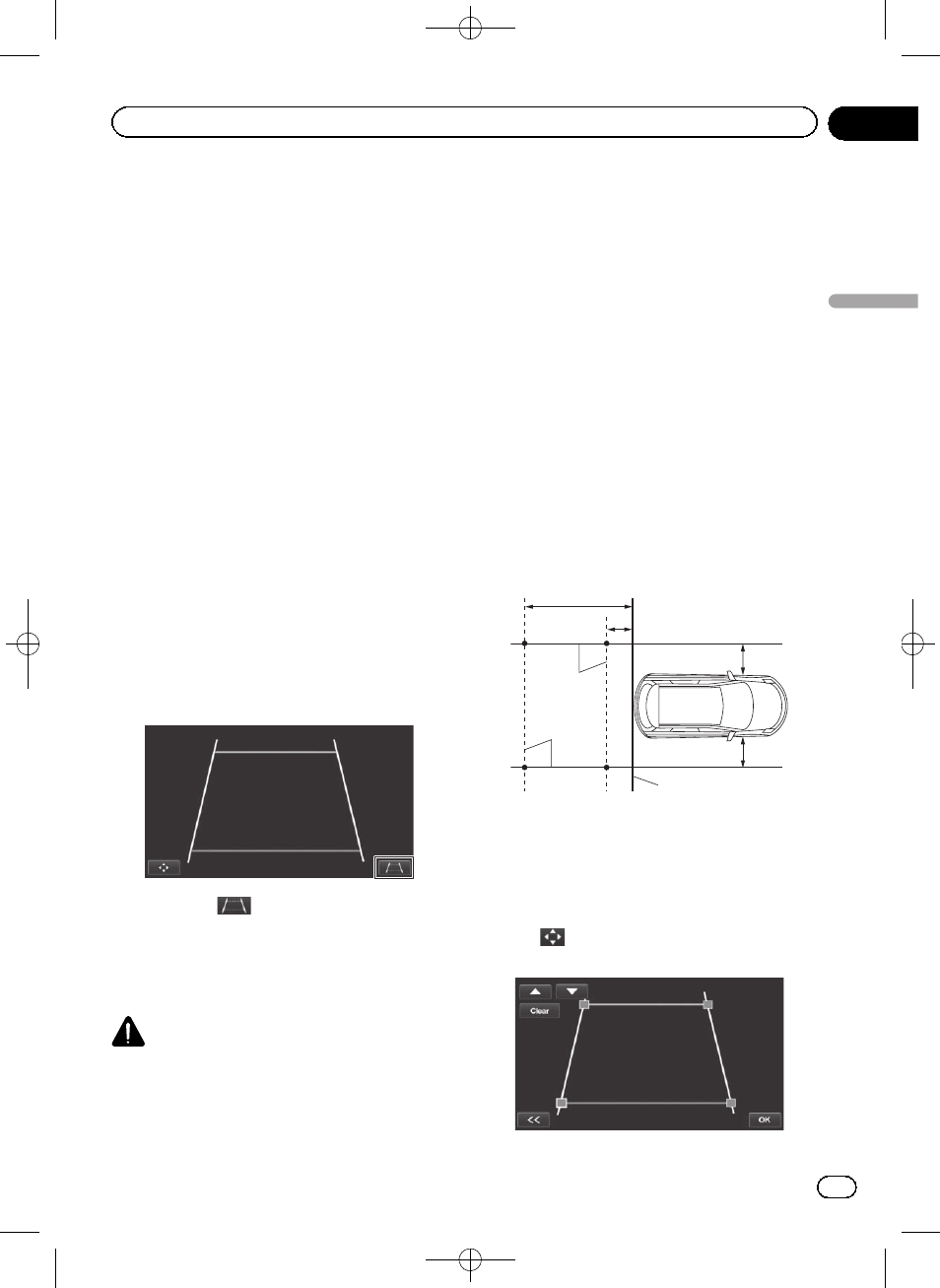
Displaying the parking assist guidelines
You can turn the parking assist guideline dis-
play on or off while the rear view screen is dis-
played.
% Tap the screen.
The parking assist guidelines appears.
p If you tap
, the parking assist guide-
lines disappear.
Setting guidelines on the rear
view image
CAUTION
! When adjusting the guidelines, be sure to
park the vehicle in a safe place and apply the
handbrake.
! Before getting out of the car to place the
markings, be sure to turn the ignition switch
off (ACC OFF).
! The range projected by the rear view camera
is limited. Also, the vehicle width and distance
guidelines displayed on the rear view camera
image may differ from the actual vehicle
width and distance. (The guidelines are
straight lines.)
! The image quality may deteriorate depending
on the usage environment, such as at night or
in dark surroundings.
1
Park your vehicle in a safe place and
apply the handbrake.
2
Using packing tape or similar, place
markings approximately 25 cm from each
side of the vehicle, and approximately
50 cm and 2 m from the rear bumper.
Rear bumper
25 cm
50 cm
25 cm
2 m
Markings
Markings
3
Put the gearstick in reverse and display
the rear view camera screen.
4
Tap the screen.
The parking assist guidelines appears.
5
Tap
.
The screen for setting the guidelines appears.
<127075004783>111
Engb
111
Chapter
28
Other
functions
Other functions