EFCO 526 Series User Manual
Page 13

EFCO 6/2012
Page 13
Series 526 Impact Installation Instructions
SECTION III: Fabrication
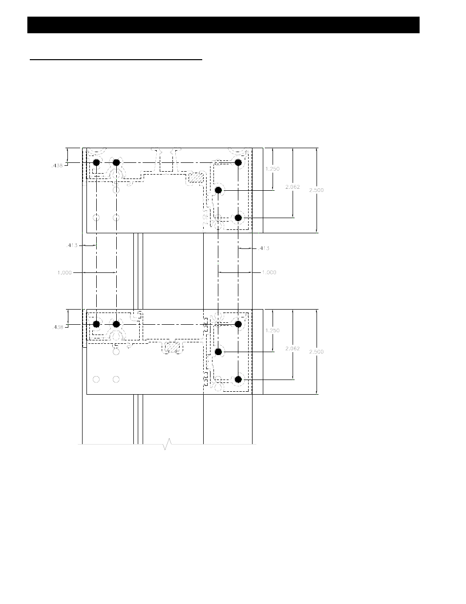
E. Drilling Template for Shear Blocks at Verticals
Outside
Glazed
Use the interior or exterior edge of the vertical to align drill jig,
DJ29. Drill with a .182 dia. (#28) drill at darkened areas only.
Dimension taken
from top of head.
Dimension taken
from top of horizontal.
526 SHEAR BLOCK
526 SHEAR BLOCK
See also other documents in the category EFCO For Home:
- Windows Hung General Maintenance Instructions (19 pages)
- Windows Hung Understanding Condensation (6 pages)
- Windows Hung Installation (58 pages)
- E-Lite (19 pages)
- E-Shade (41 pages)
- 2 1/2" Center Tongue Sun Shade Clip (19 pages)
- S5500 Advanced (46 pages)
- S5500 Inside Glazed (48 pages)
- S5500 Outside Glazed (48 pages)
- S5500 Router & Jig (6 pages)
- S5500 SSG Captured (81 pages)
- S5500 SSG (53 pages)
- S5600 Concealed Vent (13 pages)
- S5600 Inside Glazed (29 pages)
- S5600 Outside Glazed (26 pages)
- S5600 Slope Glazed (23 pages)
- S5600 Structural Glazed (28 pages)
- S5900 Inside Glazed (18 pages)
- S5900 Outside Glazed (16 pages)
- S5900 Structural Glazed (23 pages)
- 5500X Outside Glazed (60 pages)
- Duracast Pressure Plate (12 pages)
- 5800 Series (20 pages)
- 8700 Series Assembly Instructions Vol.1 (35 pages)
- 8700 Series Assembly Instructions Vol.2 (34 pages)
- 8700 Series Assembly Instructions Vol.3 (28 pages)
- 8700 Series Assembly Instructions Vol.4 (44 pages)
- 8700 Series Assembly Instructions Vol.5 (89 pages)
- 8700 Series Assembly Instructions Vol.6 (16 pages)
- 8700 Installation Instructions (68 pages)
- 8750XD (43 pages)
- 875X Wall Vent (31 pages)
- 401 Series Roto Vent for Storefront (14 pages)
- 401 Series Storefront (94 pages)
- 406 (T) Series (41 pages)
- 433 Series (90 pages)
- 525 Series (45 pages)
- 960 Series (65 pages)
- WV410 (21 pages)
- 403X Series (29 pages)
- 406X Series (25 pages)
- 945 Series (50 pages)
- 955 Series (45 pages)
- 901 Series (52 pages)