External shelf clock backup circuit, External shelf clock backup circuit -11, Shelf (see – ADC EMU-830 User Manual
Page 21

1-11
E
XTERNAL
S
HELF
C
LOCK
B
ACKUP
C
IRCUIT
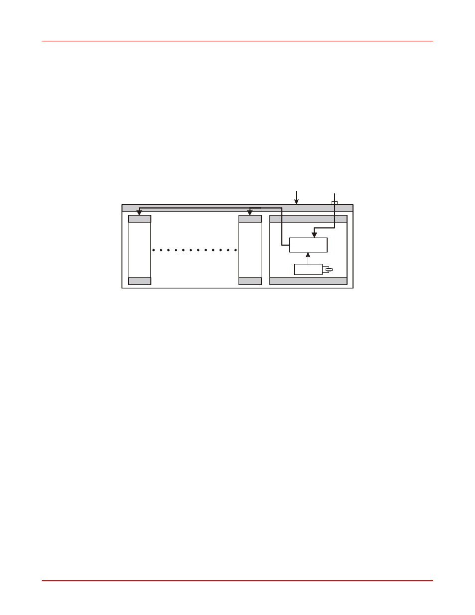
The EMU-830 List 6A includes a backup circuit for the 2.048 MHz external shelf clock. This circuit will continue to
provide a 2.048 MHz clock to the DSL cards in the event the 2.048 MHz external shelf clock is lost. The software
reports the status of this circuit and allows the user to set the severity of the alarm generated when the clock is lost.
A block diagram of the clock backup circuit is shown in
Under normal operation the external shelf clock and the backup circuit synchronize their respective clocks through
the EMUs phase-locked loop (PLL) device. In the event the external shelf clock is lost, the oscillator in the backup
circuit will continue to supply the 2.048 MHz clock. A Loss of External Clock alarm is reported to the management
station.
Figure 1-8. External Shelf Clock and EMU-830 List 6A Backup Circuit
EMS-83x Shelf
Slot 1
Slot 16
Backplane
External
Clock
input
Slot 17
LTU/STU-C
EMU-830 List 6
PLL
Oscillator
Reference
2.048 MHz
Source
LTU/STU-C