Search
Directory
Brands
Roberts Gorden manuals
Gardening equipment
Low Intensity Unitary Heater Designed for Harsh Environments HE-40
Manual
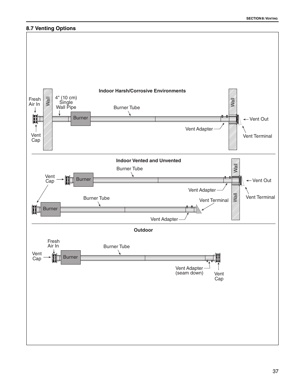
7 venting options – Roberts Gorden Low Intensity Unitary Heater Designed for Harsh Environments HE-40 User Manual
Page 43
Text mode
Original mode
7 venting options | Roberts Gorden Low Intensity Unitary Heater Designed for Harsh Environments HE-40 User Manual | Page 43 / 72
Pages:
1
…
41
42
43
44
45
…
72
wrong Brand
wrong Model
non readable
This manual is related to the following products:
Low Intensity Unitary Heater Designed for Harsh Environments HE-80
Low Intensity Unitary Heater Designed for Harsh Environments HE-175
Low Intensity Unitary Heater Designed for Harsh Environments HE-125
Low Intensity Unitary Heater Designed for Harsh Environments HE-60
See also other documents in the category Roberts Gorden Gardening equipment:
Low Intensity Unitary Heater CTH2-80
(68 pages)
Tubular Unit Heaters 225 250
(52 pages)
GordonRay BH BH-80
(70 pages)
Compact Tubular Unit Heaters CTCU 32
(50 pages)
Blackheat UHA-Series 125
(62 pages)
Combat Cabinet Heaters POP-ECA/PGP-ECA 015 to 0100
(62 pages)