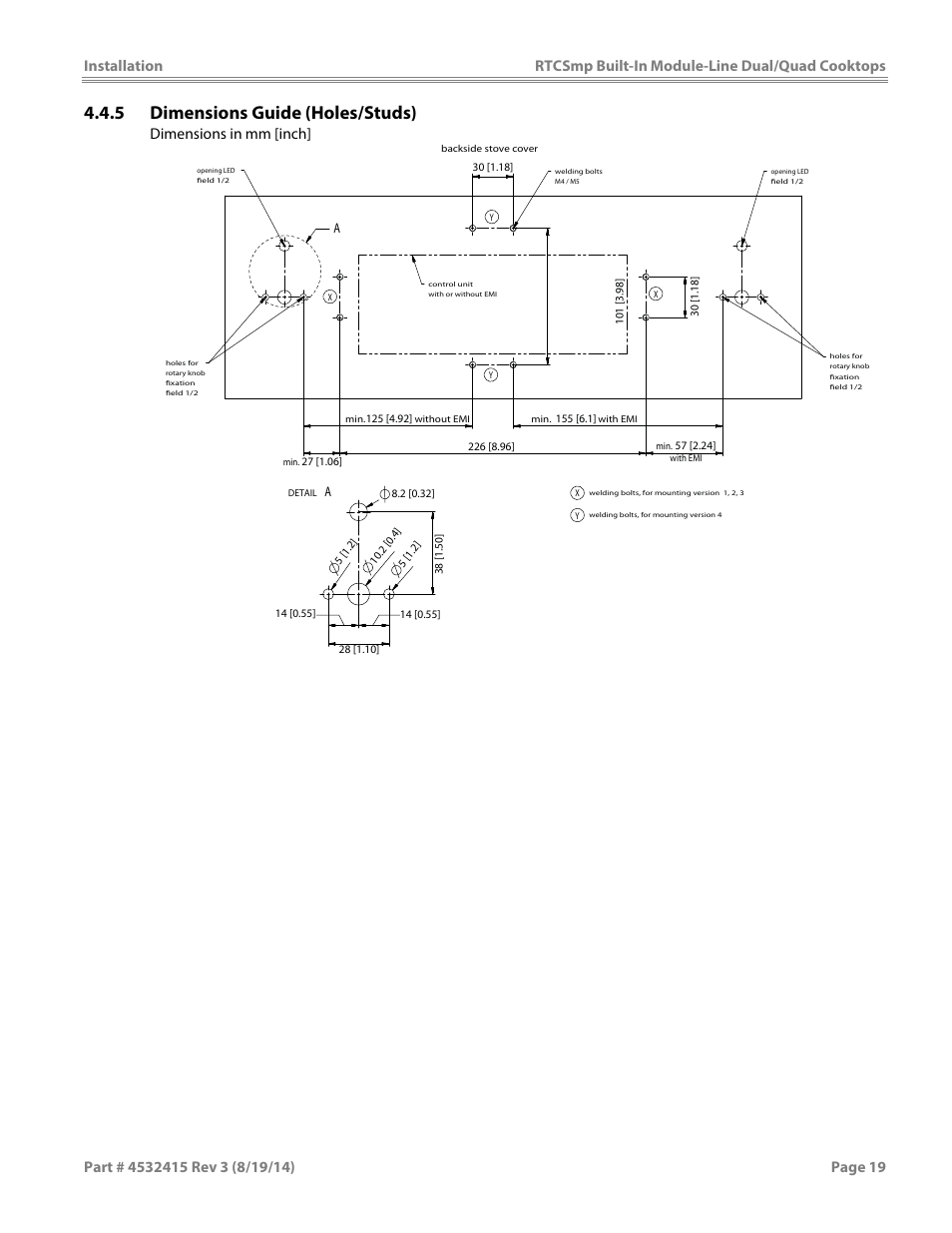
5 dimensions guide (holes/studs), Dimensions in mm [inch – Garland MO QU 28000 FL INDUCTION MODULE-LINE COOKTOPS DUAL/QUAD User Manual
Page 19
This manual is related to the following products:
- MO QU 24000 INDUCTION MODULE-LINE COOKTOPS DUAL/QUAD MO QU 21000 INDUCTION MODULE-LINE COOKTOPS DUAL/QUAD MO QU 20000 INDUCTION MODULE-LINE COOKTOPS DUAL/QUAD MO QU 14000 INDUCTION MODULE-LINE COOKTOPS DUAL/QUAD MO DU 14000 FL INDUCTION MODULE-LINE COOKTOPS DUAL/QUAD MO DU 10000 INDUCTION MODULE-LINE COOKTOPS DUAL/QUAD MO DU 7000 FL INDUCTION MODULE-LINE COOKTOPS DUAL/QUAD MO DU 7000 INDUCTION MODULE-LINE COOKTOPS DUAL/QUAD
