When connecting to separately sold power amp, Connecting the units, Black plate (4,1) – Pioneer AVH-X5500BT User Manual
Page 4

Black plate (4,1)
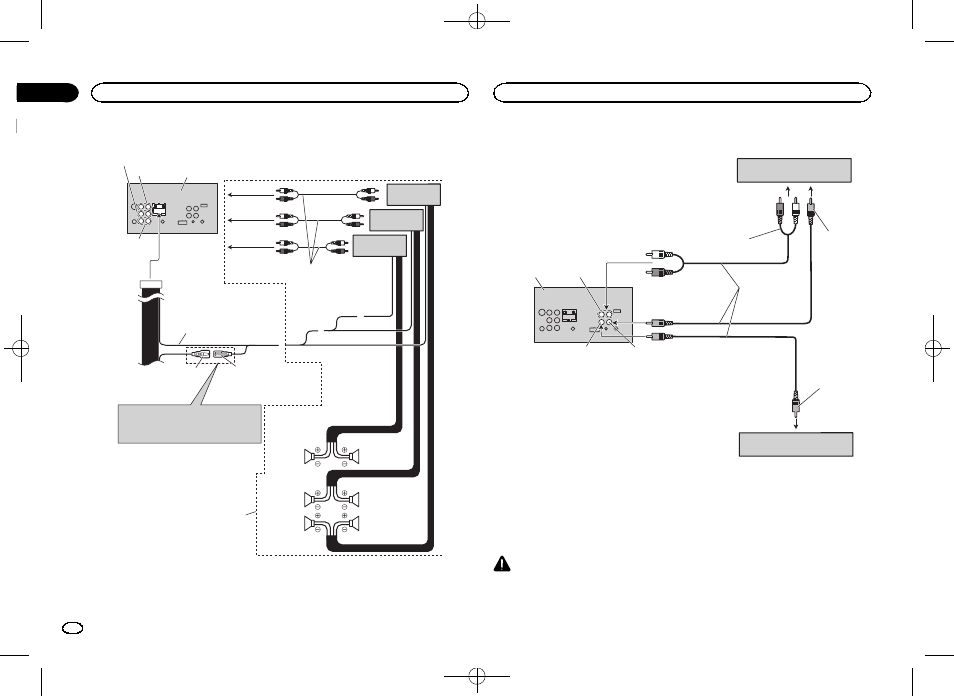
When connecting to separately sold power amp
Right
Subwoofer
Subwoofer
This product
Blue/white (5*)
System remote control
The pin position of the ISO connector will differ
depending of the type of vehicle. Connect 5* and
6* when Pin 5 is an antenna control type. In
another type of vehicle, never connect 5* and 6*.
Blue/white (6*)
Connect to auto-antenna
relay control terminal
(max. 300 mA 12 V DC).
Perform these connections when
using the optional amplifier.
Front speaker
Front speaker
Rear speaker
Rear speaker
Left
Blue/white
Connect to system control
terminal of the power amp
(max. 300 mA 12 V DC).
Connect with RCA cables
(sold separately)
Subwoofer
output
Front output
Rear output
To front output
To rear output
To subwoofer
output
Power amp
(sold separately)
Power amp
(sold separately)
Power amp
(sold separately)
When connecting the external video component and the display
External video component
(sold separately)
Audio inputs
(R IN, L IN)
Display with RCA input
jacks (sold separately)
To video
input
To video
output
To audio outputs
This product
RCA cables
(sold separately)
Rear monitor output
(V OUT)
Video input (V IN)
! It is necessary to change AV Input in the
system menu when connecting the external
video component.
This product
’s rear video output is for connec-
tion of a display to enable passengers in the rear
seats to watch the DVD, etc.
WARNING
! Never install a rear display in a location that is
visible to the driver while the vehicle is in motion.
Connecting the units
4
Section
Connecting the units
En
01