Nstallation – Burkert Type 8750 User Manual
Page 45

I
NSTALLATION
8750 - 43
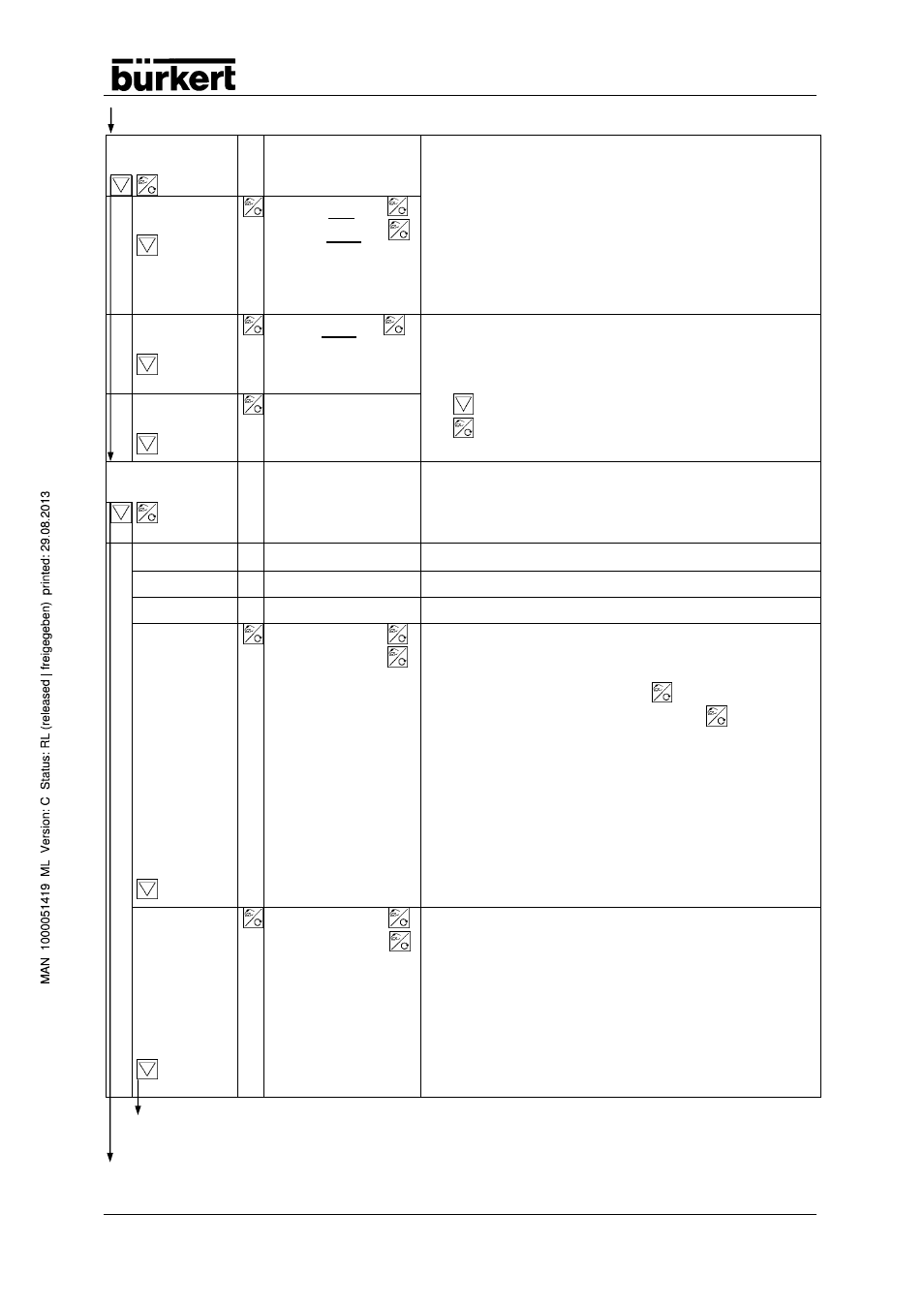
SIG--ERR
Konfiguration zur Erkennung von Fehlern der intern
gemessenen oder extern zugeführten Signalpegel
ERR P.INP
P.INP ON
SPOS OFF
Prozess-Istwert-Signalfehlererkennung (bei
P.INP OFF keine automatische Fehleranzeige);
mit SPOS OFF Anfahren der Sicherheitsposition
bei auftretendem Signalfehler; Anzeige der ent-
sprechenden Fehler-Nr. im Display (siehe auch
Fehler/ Störungen);
ERR INP
INP OFF
mit INP OFF erfolgt keine Prozess-Sollwert Si-
gnalfehlererkennung bei auftretendem Signalfehler;
diese Einstellung ist bei interner Sollwertvorgabe
SETP INT sinnvoll
ERR END
mit
zu Menüpunkt ERR P.INP oder
mit
Rücksprung zum Hauptmenüpunkt
SIG--ERR
CAL.USER
Konfiguration zur Erkennung von Fehlern der intern
gemessenen oder extern zugeführten Signalpegel
(CAL POS)
(CAL SP)
(CAL PV)
CAL P1
CAL P2
P1 4 MA
P1 20 MA
Kalibrierung der Transmitter-Eingänge beim
Fluidmengenregler (4 ... 20 mA)
Am zu kalibrierenden Eingang (p1/p2/Temperatur)
4 mA anlegen Wert mit Taste
bestätigen; dann
20 mA anlegen und erneut mit Taste
bestätigen.
Beim Eingang p1/p2 entsprechen
4 mA einem Druck von 0,0 bar (rel)
20 mA einem Druck von 10,0 bar (rel)
bzw. dem unter CAL PLIM eingestellten Endwert.
Beim Temperatureingang entsprechen
4 mA einer Temperatur von 0 °C
20 mA einer Temperatur von 150 °C
bzw. dem unter CAL TLIM eingestellten Endwert.
CAL PLIM
P1 MIN xxxx
P1 MAX xxxx
Sensorbereich einstellen
1. Unteren Druck-/Temperaturwert eingeben,
er entspricht dem Transmittersignal 4 mA.
2. Oberen Druck-/Temperaturwert eingeben,
er entspricht dem Transmittersignal 20 mA.
Die Werte müssen in folgenden Bereichen liegen:
P MIN -1,01 ...15,0 bar (rel)
P MAX 0,0 … 16,0 bar (rel)
T MIN und T MAX 0 … 150 °C
Weiter zu CAL P1’P2
Weiter zu ADDFUNCT
