Nstallation – Burkert Type 8750 User Manual
Page 18

I
NSTALLATION
16 - 8750
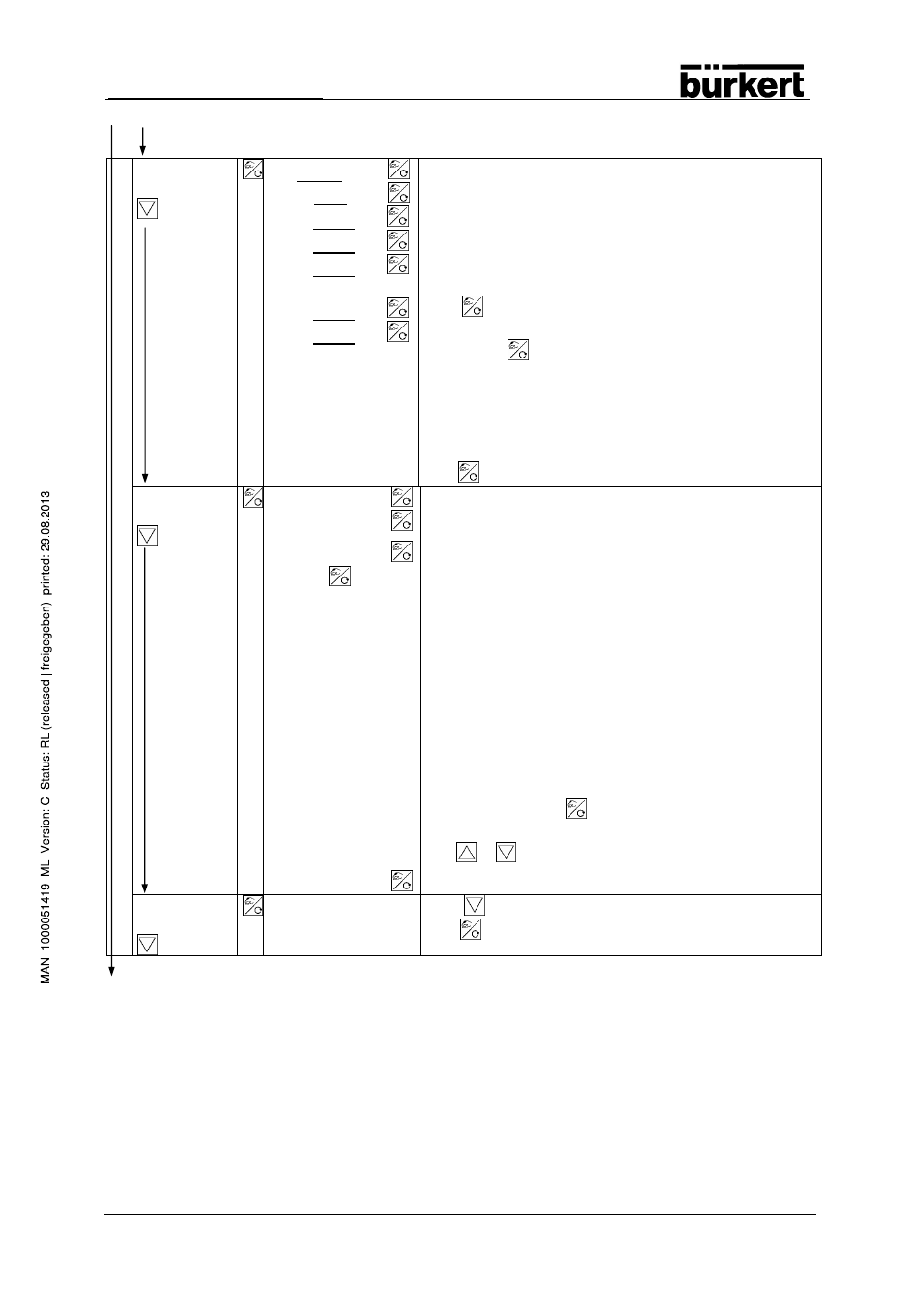
P.CO KV
KV FACT
KVS 2.10
0 000.0
5 003.0
10 004.0
...
95 088.0
100 100.0
At KV FACT, the valve characteristic entered in the
factory, as shown in the Kv-value table, is
activated; alternatively, a user-specific
characteristic may be entered under KV USER;
Note: with the command SETFACT, all manually
changed characteristic values are reset to the
factory settings;
With
further to display of the stored KVs-value
(KVs-value = max. possible flow rate: here 2.10
m³/h); with
further to display of the stored KV-
valve characteristic in %, referred to the KVs-value
(= KV/KVs in [%]); the valve characteristic is
displayed in 5% steps (cf. KV table); a change of
value is only possible with KV USER; after display
of the 100 % point,
with
return to P.CO KV
LEAK D’ACT
LEAK ACT
LEAK MEAS
Taste
gedrückt halten
bei Anzeige
TUNE 5, 4 …1,0.
Es folgen die
Anzeigen
LEAK IN
LEAK PO
LEAK OPN
LEAK PAR und
LEAK END
P.CO LEAK
LEAK CHAR
Deactivate the air leak compensation
Activate the leak compensation
Background: during transport of pourable solids,
there arises at a rotary valve an air leakage
dependent on the pressure. The air flow through
the controller unit is the sum of this leakage and
the air flow of the conveying pipe. Q
FMR
= Q
air leak
+ Q
conv.path
Reading in the air characteristic once with the
conveying pipe closed enables the air leakage to
be compensated during conveying, increasing the
precision of flow control.
The program for automatic registration of the
leakage characteristic is started with P.CO LEAK
→
LEAK MEAS
Then hold the key
depressed for 5 sec.
NOTE: to break off leakage measurement, press
key
+
simultaneously and select LEAK BRK.
Display leakage characteristic
P.CO END
With
to menu item P.CO DBND or
with
jump back to main menu item P.CONTRL
Further to SIG--ERR