Fiber optic, style 7 wiring, Fiber optic, style 7 wiring -18, Figure 5-13 – Tyco 4100U User Manual
Page 98: Step 4. wiring network cards, Continued

5-18
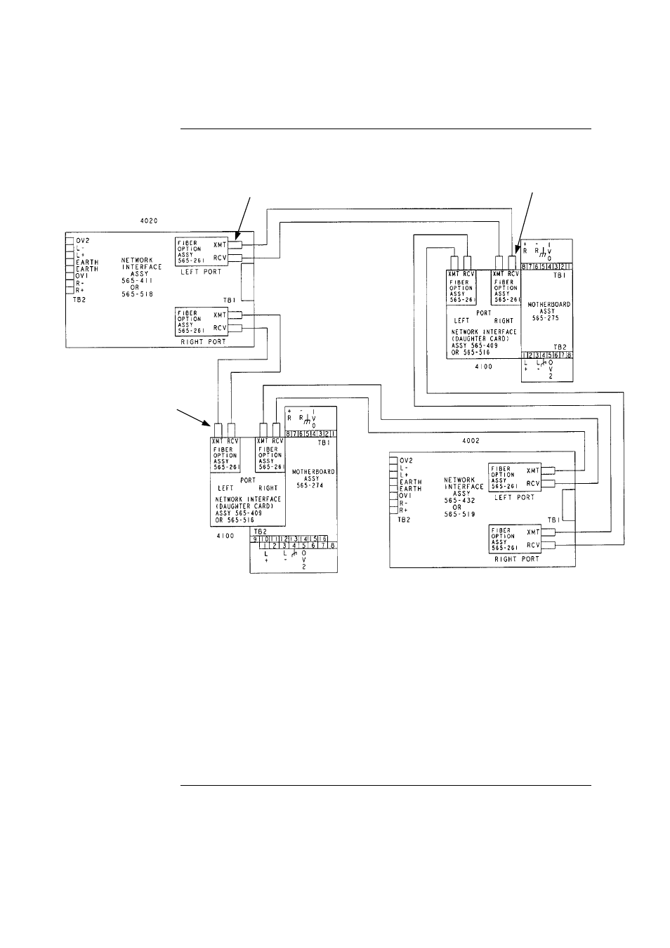
Figure 5-13. Fiber Optic, Style 7 Wiring
Continued on next page
Step 4. Wiring Network Cards,
Continued
Fiber Optic,
Style 7 Wiring
Notes:
1. Refer to general wiring precautions in this chapter, as well as Field Wiring Specifications: document 900-082 for 4100;
900-242 for 4100U. For specific information about fiber optic wiring, refer to the 900-143 Fiber Tutorial.
2. The maximum distance between nodes when using the fiber communication path is dependent upon the fiber’s
multimode graded index: 10,000 feet (3,048 m) for 50/125 fiber; 15,000 feet (4,572 m) for 62.5/125 fiber. The maximum
cable O.D. is 0.118 (3 mm). Reference document 900-143 for other fiber sizes.
3. ST connectors with long strain relief boots are to be used with the fiber optic cable.
4. On assembly 565-274, JW1 and JW2 must be installed. Jumper plugs must not be installed on P5-P8.
5. Cable clamps supplied with 748-531 are used to secure the fiber cable.
SEE NOTE 5
SEE NOTE 5
SEE NOTE 5
