Search
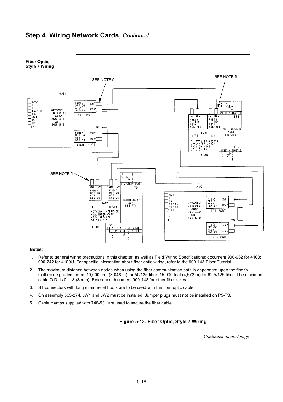
Directory
Brands
Tyco manuals
Safety
4100U
Manual
Fiber optic, style 7 wiring, Fiber optic, style 7 wiring -18, Figure 5-13 – Tyco 4100U User Manual
Page 98: Step 4. wiring network cards, Continued
Text mode
Original mode
Fiber optic, style 7 wiring, Fiber optic, style 7 wiring -18, Figure 5-13 | Step 4. wiring network cards, Continued | Tyco 4100U User Manual | Page 98 / 180
Pages:
1
…
96
97
98
99
100
…
180
wrong Brand
wrong Model
non readable
See also other documents in the category Tyco Safety:
MX4428
(134 pages)
Power608
(20 pages)
F3200
(284 pages)
4100U-S1
(138 pages)
PC1150
(12 pages)