Directory
Brands
Pioneer manuals
Televisions
PDP 427CMX
Manual

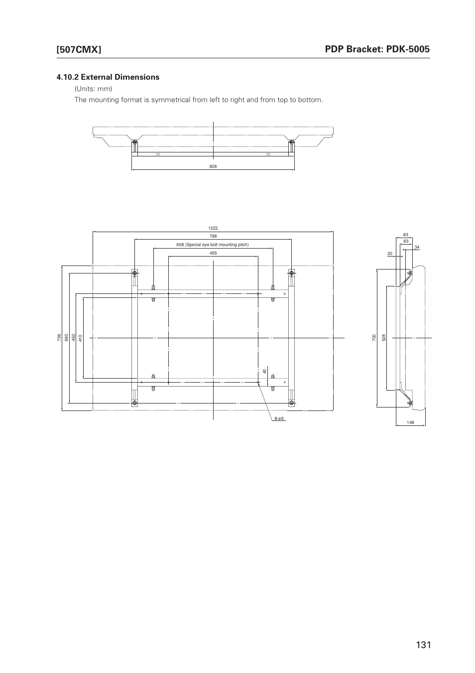
507cmx, 2 external dimensions – Pioneer PDP 427CMX User Manual

Page 131

  • Text mode
  • Original mode
507cmx, 2 external dimensions | Pioneer PDP 427CMX User Manual | Page 131 / 288 507cmx, 2 external dimensions | Pioneer PDP 427CMX User Manual | Page 131 / 288
Pages: 1 … 129 130 131 132 133 … 288
  • wrong Brand
  • wrong Model
  • non readable
See also other documents in the category Pioneer Televisions:
  • KRP-TS02 (73 pages)
  • PDK-TS25B (89 pages)
  • PDP-S64 (50 pages)
  • PDP-503HDE (194 pages)
  • PDP-503HDE (196 pages)
  • PDP-506XDE (236 pages)
  • PDP-S62 (50 pages)
  • PDP-S65 (58 pages)
  • KRP-TS01 (73 pages)
  • KRL-32V (340 pages)
  • KURO PDP 6020FD (2 pages)
  • PDP-42A3HD (47 pages)
  • PDP-505HDG (265 pages)
  • PureVision PDP 4340HD (110 pages)
  • PRO-920HD (81 pages)
  • Plasma Display Panel PDP-425CMX (24 pages)
  • PDP 507CMX (4 pages)
  • PDP-4270XA (267 pages)
  • Elite PureVision PRO 910HD (120 pages)
  • KURO PDK-TS36B (82 pages)
  • KURO KRP-600M (28 pages)
  • PDP 503CMX (44 pages)
  • PDP V501 (1 page)
  • PDP 502MX (2 pages)
  • PDP 502MX (8 pages)
  • KURO KRP-500M (2 pages)
  • PDP-614MX External Control Manual PDP-614MX and PDP-424MV (60 pages)
  • PDP-LX508A (20 pages)
  • PureVision PDP 42A3HD (134 pages)
  • PDP-508XG (266 pages)
  • PDP 50MXE1 (8 pages)
  • PDP-436RXE (136 pages)
  • PDP-436RXE (134 pages)
  • PRO-1000HDI (48 pages)
  • PDP-4330HD (71 pages)
  • PDP-42MVE1 (259 pages)
  • 43'' High Definition Plasma Television PRO-930HD (2 pages)
  • PRO-1140HD (120 pages)
  • Elite PureVision PRO 1410HD (19 pages)
  • PURE VISION PDP-4271HD (2 pages)
  • Elite PureVision PRO 940HD (118 pages)
  • PDP-6100HD (110 pages)
  • PDP 434HDE (3 pages)
  • PDP 434HDE (248 pages)
  • PDP-5080HD (285 pages)
Home Brands Popular manuals Recently added
Manuals Directory

© 2012–2025, azmanual.top
All rights reserved.