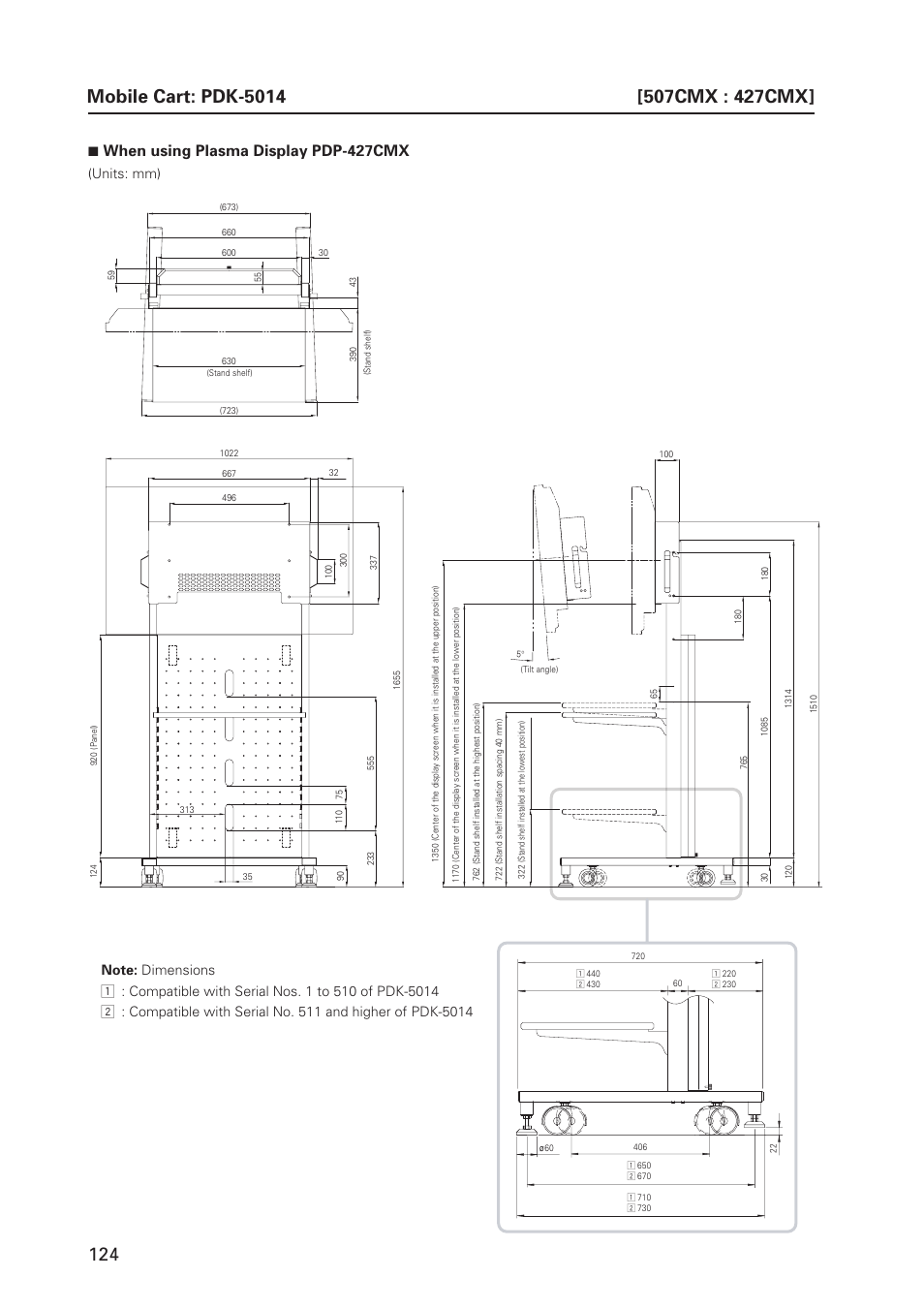
7 when using plasma display pdp-427cmx, Units: mm) – Pioneer PDP 427CMX User Manual
Page 124
See also other documents in the category Pioneer Televisions:
- KRP-TS02 (73 pages)
- PDK-TS25B (89 pages)
- PDP-S64 (50 pages)
- PDP-503HDE (194 pages)
- PDP-503HDE (196 pages)
- PDP-506XDE (236 pages)
- PDP-S62 (50 pages)
- PDP-S65 (58 pages)
- KRP-TS01 (73 pages)
- KRL-32V (340 pages)
- KURO PDP 6020FD (2 pages)
- PDP-42A3HD (47 pages)
- PDP-505HDG (265 pages)
- PureVision PDP 4340HD (110 pages)
- PRO-920HD (81 pages)
- Plasma Display Panel PDP-425CMX (24 pages)
- PDP 507CMX (4 pages)
- PDP-4270XA (267 pages)
- Elite PureVision PRO 910HD (120 pages)
- KURO PDK-TS36B (82 pages)
- KURO KRP-600M (28 pages)
- PDP 503CMX (44 pages)
- PDP 502MX (8 pages)
- PDP V501 (1 page)
- PDP 502MX (2 pages)
- KURO KRP-500M (2 pages)
- PDP-614MX External Control Manual PDP-614MX and PDP-424MV (60 pages)
- PDP-LX508A (20 pages)
- PureVision PDP 42A3HD (134 pages)
- PDP-508XG (266 pages)
- PDP 50MXE1 (8 pages)
- PDP-436RXE (136 pages)
- PDP-436RXE (134 pages)
- PRO-1000HDI (48 pages)
- PDP-4330HD (71 pages)
- PDP-42MVE1 (259 pages)
- 43'' High Definition Plasma Television PRO-930HD (2 pages)
- PRO-1140HD (120 pages)
- Elite PureVision PRO 1410HD (19 pages)
- PURE VISION PDP-4271HD (2 pages)
- Elite PureVision PRO 940HD (118 pages)
- PDP-6100HD (110 pages)
- PDP 434HDE (248 pages)
- PDP 434HDE (3 pages)
- PDP-5080HD (285 pages)