Wiring dia gram, Electrical diagrams & tables – Reznor JT4BD Unit Installation Manual User Manual
Page 22

22
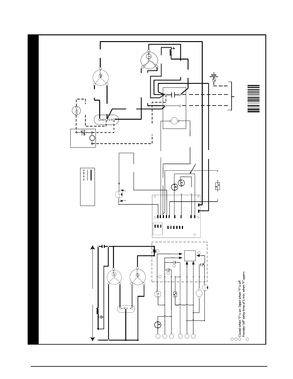
Figure 13. t4BD Wiring Diagram - Single Phase Models
ElEctrIcal DIagraMS & taBlES
Outdoo
r
F
an Moto
r
R
C
CC
C
H
F
Dual
Capacitor
(Single Phase)
Fi
eld Supply
L1
Gr
d
L2
Groundin
g
Sc
re
w
C
S
T1
T2
L1
L2
HPS
Contac
to
r
R
Star
t
Capacitor
Star
t Rela
y
5
2
hti
w
w
oll
e
Y
hs
a
H
kc
al
B
Comp
Lo
w
Vo
ltag
e
Te
rminal
s
See
Note 6
Defr
ost
Thermostat
TERMINAL OR GR
AY
WIR
E
OD
T(Selec
t
Models Only
)
T2
DFT
TES
T
T1
T2
C
Y
O
W2
R
DFT
E
C
Y
O
W2
R
E
DF1
DF
2
Black
Black
Reversing
V
alv
e
Solenoid
S
CC
Defrost C
ontrol Boar
d
1
CC
H
Black
Red or Red Black
Ye
llow or
Ye
llow Black
Black
Black or
Black
Whit
e
Orange
Re
d
Re
d
Ye
llow
Blac
k
Blue
Y
ello
w
Black
Blac
k
Black
Blue
Black
Yellow
es
a
h
P
el
g
ni
S
)
n
oit
c
e
S r
o
o
dt
u
O(
p
m
u
P t
a
e
H
m
et
s
y
S t
il
p
S
WIRING DIA
GRAM
NO
TES:
1. Disconnec
t all power be
fo
re ser
vicing
.
2. F
or supply connec
tions use copper condu
ct
ors only
.
3. Not suitable on systems that ex
ceed 150 volts to ground
4. F
or replacement wires use condu
ct
ors suitable f
or 105˚ C.
5. F
or ampacities and overcurrent protec
tion, see unit rating plate
.
6. Connec
t to 24 vac/40va/class 2 circuit. See furnace/air handler
installation instruc
tions f
or control circuit and optional
relay/transf
ormer
ki
ts
.
Defrost Board Operation:
Closing during defrost.R
ating: 1 Am
p.
Max.
Opens during defrost.
Ra
ting: 2HP at 230
Va
c Max.
W
ith DFT closed and
“Y
”
closed, compressor run
time is accumulated. Opening of DFT during
defrost or inte
rv
al period resets the inte
rv
al to 0.
CC
- Contac
tor Coil
CC
H - Crankcase Heater
DFT - Defrost
Thermostat
HPS - High
Pr
essure Switch
R
VS - Reversing
Va
lve Solenoi
d
* - Hard Sta
rt
Kit
Fi
eld Installed
OD
T - Outdoor
Thermostat
1. Couper le courant avant de faire letretien.
2. Employez uniquement des conduc
teurs en cuivr
e.
3. Ne con
vient pas aux installations de plus de 150 volt a la terr
e.
710507-D
(Replaces 710507
-C
)
05/11
FIELD
WIRING
LEGEND:
LO
W
VOL
TA
GE
HIGH
VOL
TA
GE
Dual
C
apacitor
H
C
F
CC
H
C
ompr
essor
Co
ntac
ts
C
ompr
essor
Outdoor F
an Moto
r
R
C
S
L1
T1
L2
T2
E
Defrost
Co
ntr
ol
Boar
d
DF
T
OD
T (Selec
t
Models Only)
Co
ntro
l
Lo
gi
c
DF
1
DF
2
DFT
1
2
3
1
2
3
4
4
1
R
W2
O
Y
C
T2
T1
R
W2
O
Y
C
RV
S
HPS
208/230V
CC
R
C
S
