Supply air duct work, Return air duct work – Thermo Pride Thermo Pace Downflow/Horizontal Furnace (CSA) User Manual
Page 23

Installer’s Information Manual
Page 23
SECTION 9. INSTALLING DUCT
SYSTEM
Properly size duct system based on heat-loss and heat-gain
calculations to ensure good heating and cooling
installations, potentially fewer call-backs, and delivery of
required circulating air. Install duct system to meet current
Standard for Installations of Warm Air Heating and Air
Systems ASHRAE/NFPA 90 and local codes.
CAUTION: Failure to follow these standards could reduce
airflow or increase air leakage, res ulting in reduced system
performance or fu rnace damage.
Design duct system so fu rnace will operate at a static
pressure of less than 0.50 inches W.C. on high blower
speed. This static pressure limitation includes the total
pressure losses on both supply air side and retu rn air side
of system. Supply side pressure loss includes cooling coil,
ducts and room registers. Retu rn side pressure loss
includes retu rn grilles and ducts. Pressure losses are
calculated based on 400 CFM per ton of cooling.
SUPPLY AIR DUCT WORK
Supply air duct (plenum) connections must be at least as
big as fu rnace supply opening. Seal supply-air ductwork to
furnace casing, walls, ceilings or floors it passes through.
End ductwork outside fu rnace space.
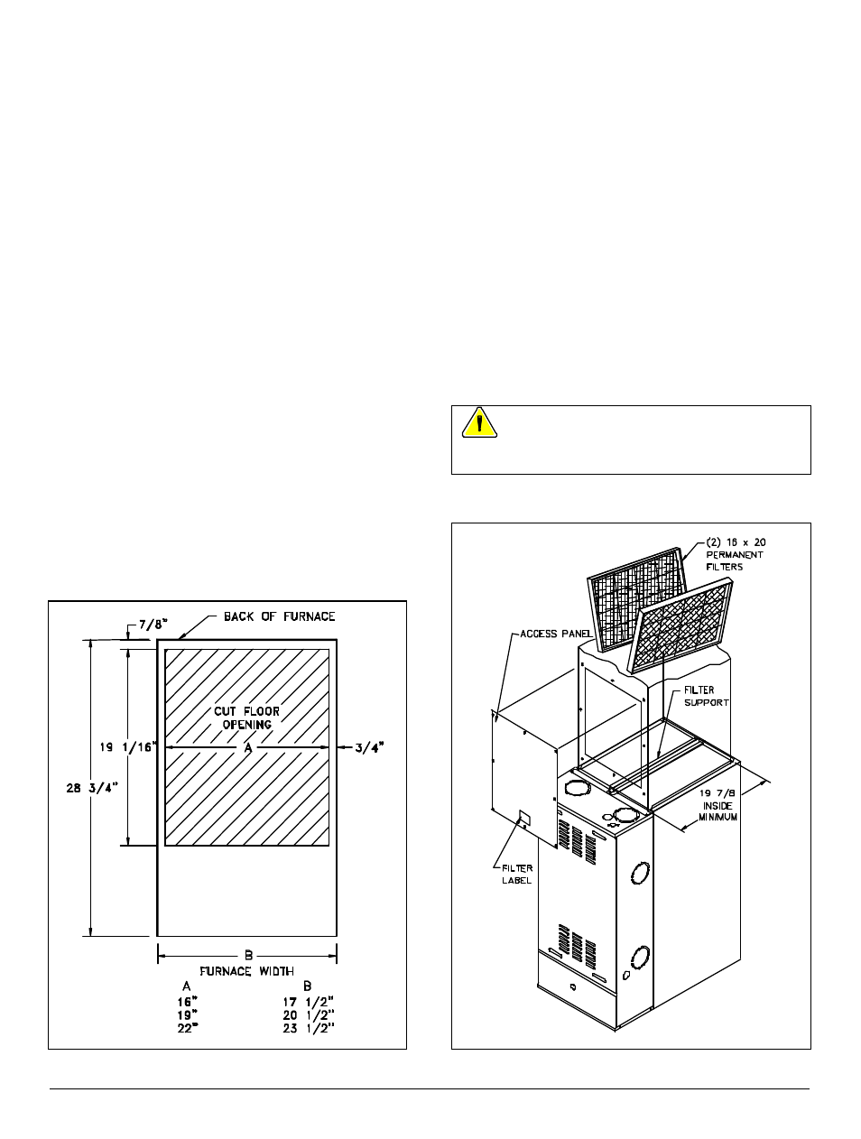
See Figure 27 for floor cutout dimensions for combustible
floor base.
Figure 27. Floor Cutout Dimensions.
Note: A combustible floor base, available from the
manufacturer, is required for downflow furnace installation
on wood flooring.
On furnaces not equipped with a cooling coil, a removable
access panel that is large enough to allow viewing of the
heat exchanger should be provided in the supply duct. The
access panel should be accessible when the fu rnace is
installed. Seal access-panel cover to prevent leaks.
If you install furnace in horizontal position with a cooling
coil, an eighteen-inch transition between furnace and
cooling coil should be used to allow free airflow into the coil.
Also, consult cooling coil installation instructions.
RETURN AIR DUCT WORK
When furnace is installed so that supply air ducts carry air
to areas outside the space containing the fu rnace, return air
must be handled by a duct(s) sealed to fu rnace casing and
terminating outside the space containing fu rnace.
WARNING: Failure to seal retu rn-air ductwork
could allow combustion products to enter circulating air
stream resulting in injury or death by asphyxiation.
In downflow position, return-air duct must have a minimum
inside depth of 19-7/8 inches for filters to fit. See Figure 28.
Figure 28. Downflow Filter Application.