Page 10 acoa series air-cooled central chillers – AEC ACOA Series Air-Cooled Central Chillers User Manual
Page 11

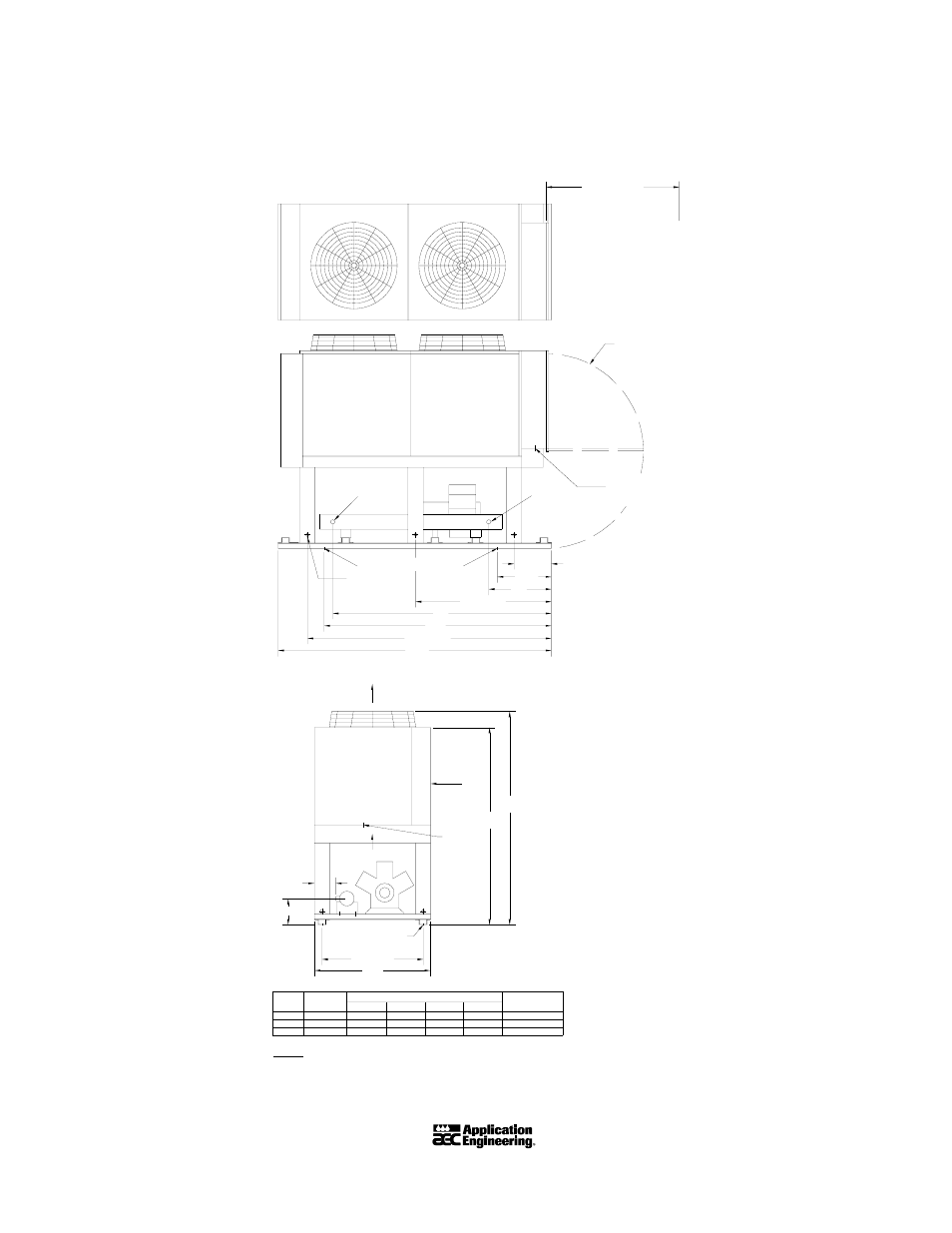
Figure 2
ACOA15, ACOA20, and ACOA25 Outline Drawing
ACOA
MODEL
EVAP.
MODEL
'A'
'B'
WATER
CONNECTION
15
20
25
CHS00560
CHS00660
CHS00760
'C'
23-3/16"
80-13/16"
9-3/4"
1-1/2" N.P.T.
3" N.P.T.
10-3/16"
80"
24"
3" N.P.T.
10-15/16"
80-1/16"
23-15/16"
2-3/4"
5-7/16"
5-1/16"
'D'
DIMENSIONS
CONTROL
BOX
73"
79"
POWER
AIR
FLOW
AIR FLOW
`C'
43"
AIR FLOW
37-5/16
MOUNTING
LOCATION
ENTRY
`D'
ALLOW 60" FOR
SERVICE ACCESS
20"
A
B
84"
101"
WATER
OUT
IN
WATER
MOUNTING LOCATIONS
POWER ENTRY
(SEE NOTE 4)
90-3/16"
50-3/16"
13-13/16"
LIFTING
HOLE
DOOR SWING
NOTES:
1 - ALL DIMENSIONS IN INCHES.
3 - ALLOW 60" CLEARANCE AT CONTROL PANEL END OF UNIT FOR SERVICE
4 - USE MINIMUM 36" FLEXIBLE CONDUIT TO CONTROL BOX TO ISOLATE UNIT.
5 - WATER PIPING TO BE SUPPORTED TO MINIMIZE LOAD ON UNIT.
2 - VENT AND DRAIN CONNECTIONS PROVIDED ON COOLER.
6 - ALL DIMENSIONS AND SPECIFICATIONS ARE SUBJECT TO CHANGE WITHOUT
NOTICE.
Page 10
ACOA Series Air-Cooled Central Chillers
