
Pub.: 43004-031E 
Model CB193-xxx, CB194-xxx, and CB195-xxx RF Call Boxes 
Page 
36 of 52
 
f:\radio products-current release\43004\43004-031e\43004-031e.doc 
11/12 
 
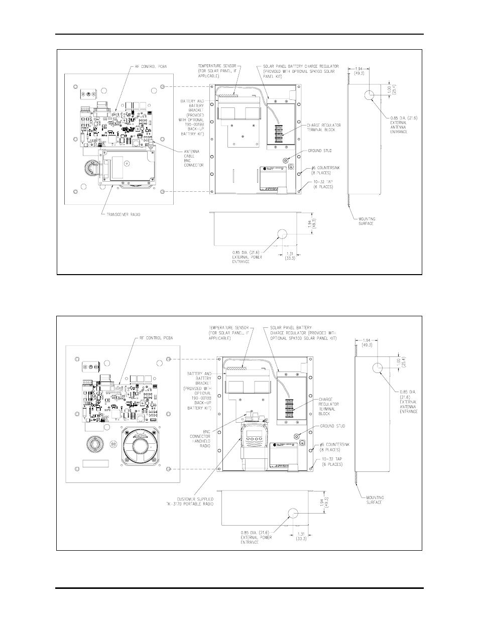
Figure 9. Model CB195-001 and CB195-002 Mounting Details 
 
 
Figure 10. Model CB195-003 Mounting Details