Texas Instruments SLLU039B User Manual
Page 19

Typical Cable Test Configurations
2-3
Test Setup
2.1.2
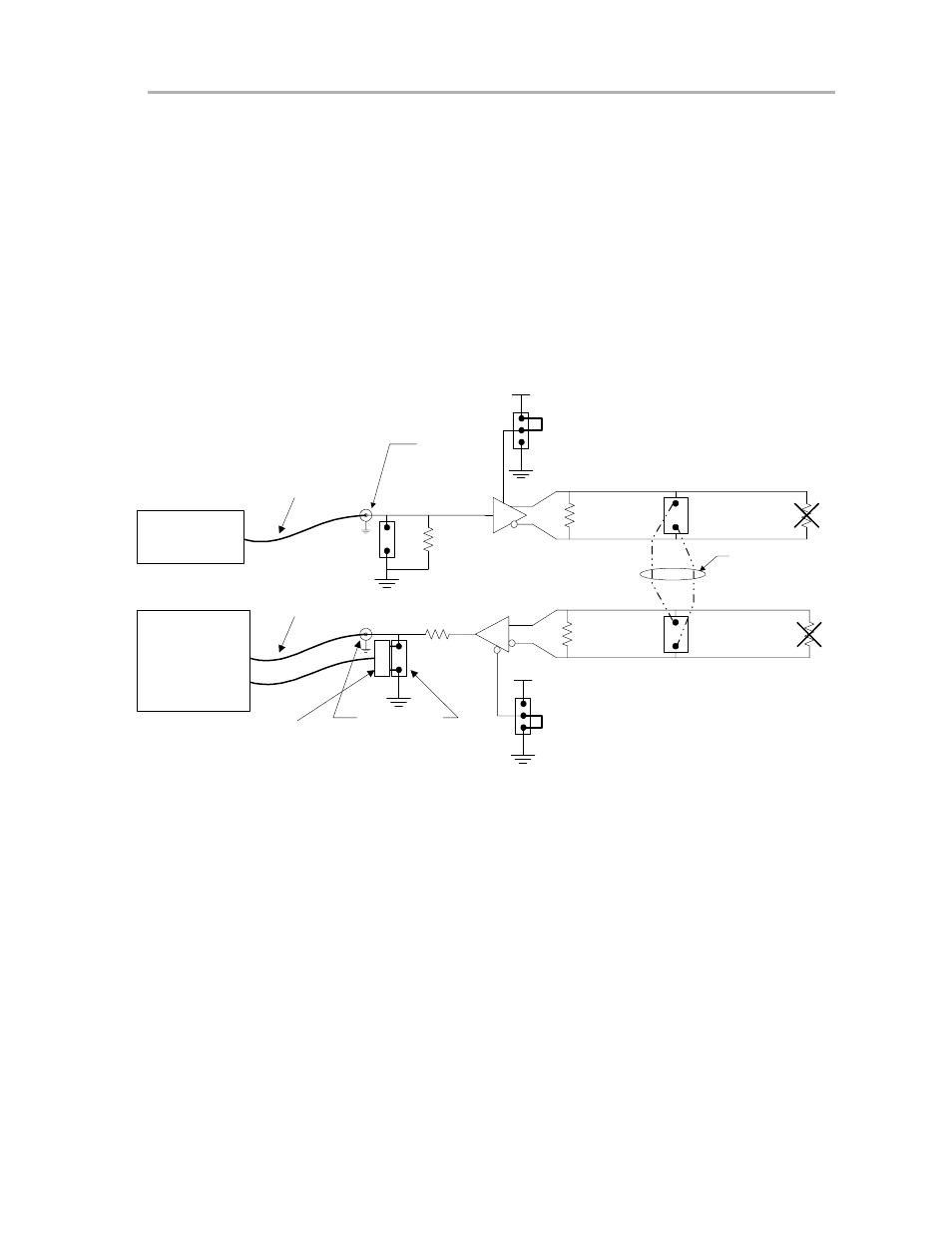
Point-to-Point Parallel Terminated Simplex Transmission
1) Connect a twisted-pair cable from P1 to P2.
2) Verify resistor R4 and R7 are installed.
3) Remove resistors R5 and R6. This properly terminates the transmission
line at both ends.
4) Enable the driver by connecting the jumper on W2 between pin 1 and pin
2, or U1 pin 4 to V
CC
.
5) Enable the receiver by connecting the jumper on W1 between pin 2 and
pin 3, or U1 pin 3 to GND.
Figure 2−2. Point-to-Point Parallel Terminated Simplex Transmission
R4
100
R5
100
U1
R7
100
R6
100
U1
11
12
2
9
10
5
P1
P2
Twisted Pair Cable
4
W2
V
CC
Jumper
3
W1
V
CC
Jumper
R3
49.9
J2
Input Signal
R2
453
J1
Output Signal
TP1
TP2
Signal Source
Output
Cable
Active Voltage
Probe into one
Channel of Scope
Terminated in
High Impedance
Cable
Active Voltage
Probe
50-
Ω
50-
Ω
50-
cable or
Ω
with 50-
Ω
2.1.3
Two-Node Multipoint Transmission
1) Connect a twisted-pair cable between P1, P2, and P3.
2) Verify resistor R5 and R16 are installed.
3) Remove resistors R4, R6, R7, and R15. This properly terminates the
transmission line at both ends.
4) Enabling the driver in a two-node multipoint configuration will be a slightly
more challenging task. The user can either jumper enable a single driver
and send all of the data on the bus through a single driver, or sync the
driver enable to the data and send data from each driver. Enable a single
driver by connecting the jumper on W4 between pin 1 and pin 2 which
connects U2 pin 3 to V
CC
, or by connecting the jumper on W2 between pin
1 and pin 2 which connects U1 pin 4 to V
CC
.
5) Enable the receivers by connecting the jumpers on W1 and W3 between
pin 2 and pin 3, or U1 pin 3 to GND and U2 pin 2 to GND.
