Sensaguard – Rockwell Automation 440N SensaGuard 18 mm Stainless Steel Barrel Installation Instructions User Manual
Page 7

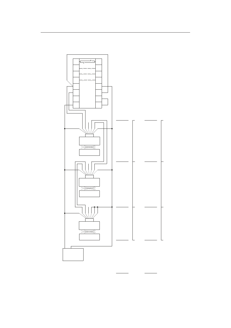
Unit Response Time (does not include safety relay response time)
SensaGuard
TM
18 mm Stainless Steel Barrel Installation Instructions 7
Yel
Red
White
G
ray
Pin
k
Blue
24V DC
Power
S
upply
1606
Sensor 1
+24
RT
Sensor 2
Brown
Brown
G
ray
Pin
k
White
Yel
Red
Blue
Sensor 3
Brown
Yel
Red
White
G
ray
Pin
k
Blue
A2
S
21
S
11
41
33
23
13
S
12
S
52
42
34
24
14
A1
S
34
S
22
MSR127TP
Actuator 1
Actuator 2
Actuator 3
Initial Condition
s:
All actuator
s are in
sen
sing
di
stance.
Actuator 1 i
s moved out of
sen
sing range.
S
en
sor 2 drop
s the 24 volt
s
(red and yellow) from
S
en
sor 1
O
SS
D output
s.
G
reen LED fla
she
s.
S
en
sor 3 drop
s the 24 volt
s
(red and yellow) from
S
en
sor 2
O
SS
D output
s.
G
reen LED fla
she
s.
0 m
s
54 m
s
72 m
s
90 m
s
Actuator 1 i
s out of
sen
sing
range.
Actuator 2 and 3 are in
sen
sing range.
Actuator 1 i
s moved into
sen
sing
range.
S
en
sor 1 O
SS
D output
s are
energized.
S
en
sor 2 O
SS
D input
s (red and yellow)
tran
sition to 24V DC from
S
en
sor 1
O
SS
D output
s.
S
en
sor 2 O
SS
D output
s are energized
S
en
sor 3 O
SS
D input
s (red and
yellow) tran
sition to 24V DC from
S
en
sor 2 O
SS
D output
s.
S
en
sor 3 O
SS
D output
s are
energized.
0 m
s
360 m
s
378 m
s
396 m
s
OFF
ON
Note: Refer to Technical Specifications for Certification information and ratings.
PA-75056-181, Ver 05 March 2012
- 20P PowerFlex DC Drive - Frame D Bimetal Thermostat (10 pages)
- 1336S_F_T_E_R F Frame Snubber Resistor Repl. (6 pages)
- 22-COMM PowerFlex 4-Class DSI (Drive Serial Interface) Network Communication Adapter (4 pages)
- 8-545 Plug In Solid State Relay (2 pages)
- 20-HIM-B1 PowerFlex 7-Class HIM Bezel (DPI) (4 pages)
- 100 Contactors with DC Coil (1 page)
- 100 Contactors with DC Coil (2 pages)
- 20P PowerFlex DC Drive - Frame D Switching Power Supply Circuit Board (6 pages)
- 140G-MTFx_MTHx_MTIx_MTKx Trip Unit Installation-140G-M (6 pages)
- 45BRD Analog Laser Sensor (4 pages)
- 20D Multi-Device Interface Option Board for PowerFlex 700S Drives (20 pages)
- 56RF RFID 18 mm Cylindrical Transceiver (2 pages)
- 42KC Miniature Rectangular: 5V DC Version (2 pages)
- 20P PowerFlex DC Drive - Frame A Switching Power Supply Circuit Board (16 pages)
- 21P-MISC-A-TP-2 Transition Tube Kit #C19-6/7 For PowerFlex 755 w/OEM Liquid Cooling Fr 6/7 Drive (2 pages)
- 42BT Background Suppression Sensor (3 pages)
- 42CB High Speed 18mm Cylindrical (4 pages)
- 140EX-JE2_JE3 Molded Case Circuit Breaker (4 pages)
- 140G-K-EAM1A Early Make Aux Contact for Rotary Handle Oper Mech-140G-K (1 page)
- 140G-K-EAM1A Early Make Aux Contact for Rotary Handle Oper Mech-140G-K (3 pages)
- 20-HIM-A6 PowerFlex (Human Interface Module) (74 pages)
- 42CF General Purpose 12mm Cylindrical (4 pages)
- 20D PowerFlex 700S Phase II Drive Frames 1...6 (80 pages)
- 140EX-HE1_HE2 Molded Case Circuit Breaker (6 pages)
- 140EX-HE1_HE2 Molded Case Circuit Breaker (4 pages)
- 20B PowerFlex 700 Custom Firmware - Pump Off (12 pages)
- 20-WIM-N4S DPI Wireless Interface Module (92 pages)
- 140U H-Frame Circuit Breaker Fixed and Adjustable Thermal Trip (7 pages)
- 140U H-Frame Circuit Breaker Fixed and Adjustable Thermal Trip (2 pages)
- 60-2619, 42JS Swivel/Tilt Mounting Bracket (1 page)
- 22A PowerFlex 4/40/400 Flange Mount (4 pages)
- 45MLA Controller Installation Instructions (16 pages)
- 20P PowerFlex DC Drive - Cooling Fan for Frame A Drives Above 73A at 230V 460V AC (6 pages)
- 42JS Series 7000 to 42JS VisiSight Replacement Kit (2 pages)
- 22A PowerFlex 4-Class HIM Bezel (DSI) (4 pages)
- 42CS Stainless Steel Photoelectric Sensors (4 pages)
- 20L-LL PowerFlex 700L Liquid-to-Liquid Heat Exchanger (40 pages)
- 20P PowerFlex DC Drive - Frame B SCR Modules (20 pages)
- 22B PowerFlex 40 Quick Start FRN 5.xx - 6.xx (161 pages)
- 22B PowerFlex 40 Quick Start FRN 5.xx - 6.xx (22 pages)
- 22F PowerFlex 4M Input RFI Filters (2 pages)
- 45LFM Capacitive Label Sensor (4 pages)
- 140G-Rx Installation Instruction-140G-R (2 pages)
- 140G-Rx Installation Instruction-140G-R (29 pages)
- 22C PowerFlex 400 AC Drive Quick Start - FRN 1-4.xx (28 pages)